Appartement à louer - Rue Bovy-Lysberg 3, 1204 Genève
Pourquoi vous aimerez ce bien
Charmante cheminée décorative
Cuisine équipée et moderne
Suite parentale avec dressing
Organiser une visite
Réserver une visite aujourd'hui !
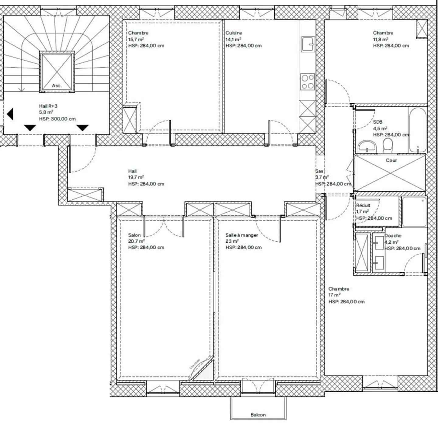
Splendide appartement 6 pièces
A la limite du très réputé quartier des banques et du quartier artistique des Bastions, nous vous proposons au 3e étage d'un bel immeuble genevois, un magnifique appartement de 140 m2.
Bénéficiant d'une belle hauteur de plafond et de superbes parquets, il est composé d'une jolie entrée désservant :
- un double séjour avec cheminée décorative
- une cuisine meublée et équipée
- une chambre parentale avec dressing et salle d'eau
- deux chambres
- une salle de bains avec wc
- un wc visiteurs.
Disponible...
Détail des loyers
- Loyer net
- CHF 6’060
- Coûts supplémentaires
- CHF 400
- Total des loyers
- CHF 6’060
Détails du bien
- Disponible à partir de
- Sur accord
- Pièces
- 6
- Année de construction
- 1899
- Surface habitable
- 140 m²
- Surface utilisable
- 140 m²
- Étage
- 3ème



