Attique à louer - Hintere Gasse 3, 3210 Kerzers
Pourquoi vous aimerez ce bien
Accès sans barrières
Balcon privé
Finitions de haute qualité
Organiser une visite
Réserver une visite avec Rogerio aujourd'hui !
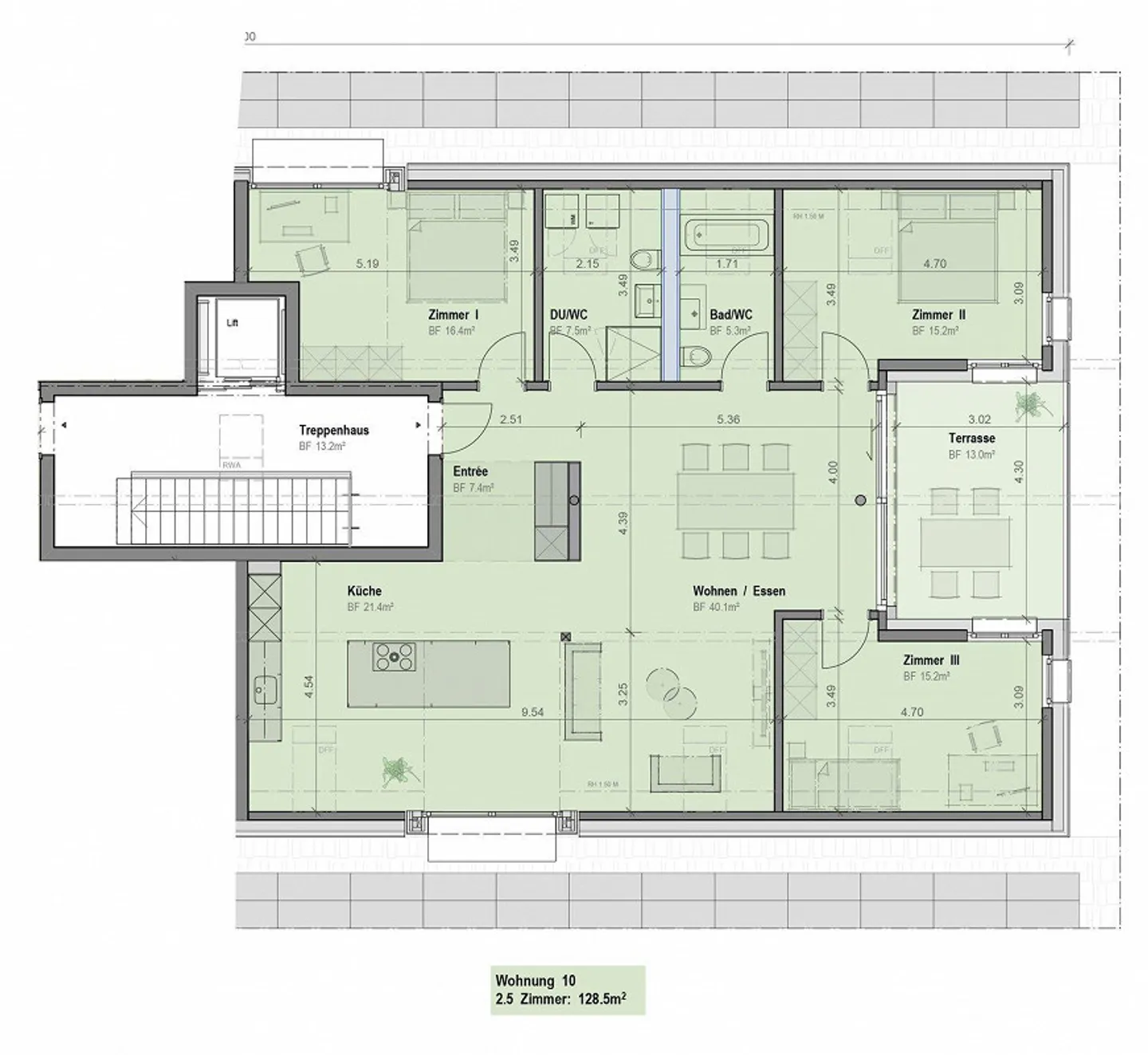
Moderne appartement en attique de 4,5 pièces à Kerzers
Découvrez ce penthouse de 4,5 pièces de haute qualité dans un tout nouveau bâtiment situé au Hintere Gasse 3 à Kerzers. Ce penthouse moderne de 4,5 pièces d'environ 129 m² de surface habitable se trouve dans un tout nouveau bâtiment et allie construction contemporaine et confort de vie réfléchi. L'appartement sera prêt à être occupé à partir de septembre 2026 et offre un espace de vie généreux dans un emplacement calme et ensoleillé.
Le penthouse impressionne par ses pièces lumineuses, une dispos...
Détail des loyers
- Loyer net
- CHF 2'580
- Coûts supplémentaires
- CHF 330
- Total des loyers
- CHF 2'580
Détails du bien
- Disponible à partir de
- Sur accord
- Pièces
- 4.5
- Année de construction
- 2026
- Surface habitable
- 129 m²



