Appartement à louer - Hinter-Listrig 3, 6020 Emmenbrücke
Pourquoi vous aimerez ce bien
Vue imprenable sur les montagnes
Cuisine moderne avec îlot
Norme Minergie économe en énergie
Organiser une visite
Réserver une visite aujourd'hui !
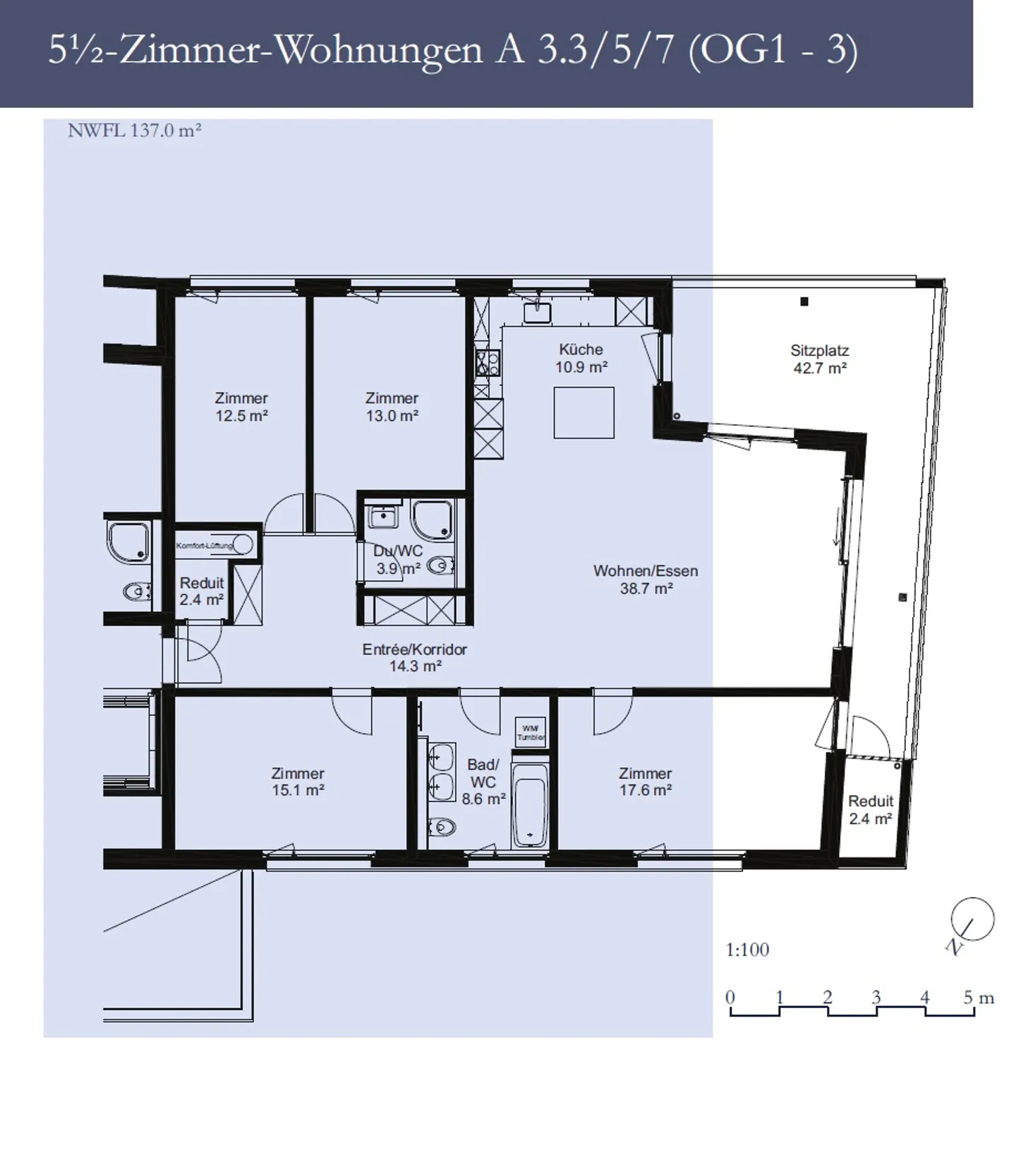
Vivre avec vue - appartement lumineux de 5,5 pièces dans une zone de loisirs
Nous louons un appartement lumineux et moderne de 5,5 pièces à Hinter-Listrig à partir du 1er novembre 2025.
Le calme de l'emplacement, la vue fantastique sur les montagnes et les matériaux sélectionnés vous offrent un foyer unique.
La Listrighöhe impressionne par son emplacement attrayant, qui allie vie proche de la nature et vie urbaine. Grâce à de nombreux espaces verts, à la forêt de Riffig adjacente et à l'infrastructure à proximité, vous profitez d'un emplacement résidentiel privilégié. Les ...
Détail des loyers
- Loyer net
- CHF 2’760
- Coûts supplémentaires
- CHF 300
- Total des loyers
- CHF 2’760
Détails du bien
- Disponible à partir de
- Sur accord
- Pièces
- 5.5
- Année de construction
- 2012
- Surface habitable
- 137 m²
- Étage
- 2ème



