Attique à louer - Gerbestrasse 2a, 8840 Einsiedeln
Pourquoi vous aimerez ce bien
Vues panoramiques depuis la terrasse
Cuisine de haute qualité
Emplacement central et calme
Organiser une visite
Réserver une visite avec Summermatter aujourd'hui !
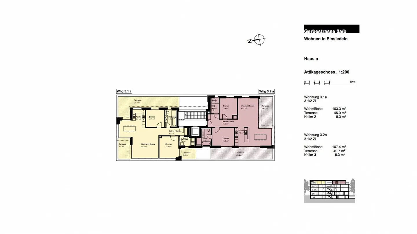
Appartement en attique 3,5 pièces dans un emplacement de choix
L'appartement dispose d'environ 107 m² de surface habitable et impressionne par ses pièces spacieuses et lumineuses ainsi que par une finition soignée avec parquet et une cuisine sur mesure de haute qualité. Deux terrasses d'une superficie totale d'environ 40 m² orientées à l'est, au sud et à l'ouest offrent une magnifique vue panoramique et du soleil tant qu'il brille.
L'emplacement très calme et pourtant central offre une grande qualité de vie avec beaucoup de verdure. Les équipements comprenne...
Détail des loyers
- Loyer net
- CHF 2’750
- Coûts supplémentaires
- CHF 350
- Total des loyers
- CHF 2’750
Détails du bien
- Disponible à partir de
- Sur accord
- Pièces
- 3.5
- Année de construction
- 2012
- Surface habitable
- 107.4 m²
- Étage
- 3ème
- Étages du bâtiment
- 3



