Appartement à louer - Rickenstrasse 28a, 8735 St. Gallenkappel
Pourquoi vous aimerez ce bien
Espace de vie lumineux
Vue panoramique dégagée
Nature et loisirs à proximité
Organiser une visite
Réserver une visite avec Rigon aujourd'hui !
Appartement de rêve avec une vue magnifique !
Points forts de l'appartement et des environs :
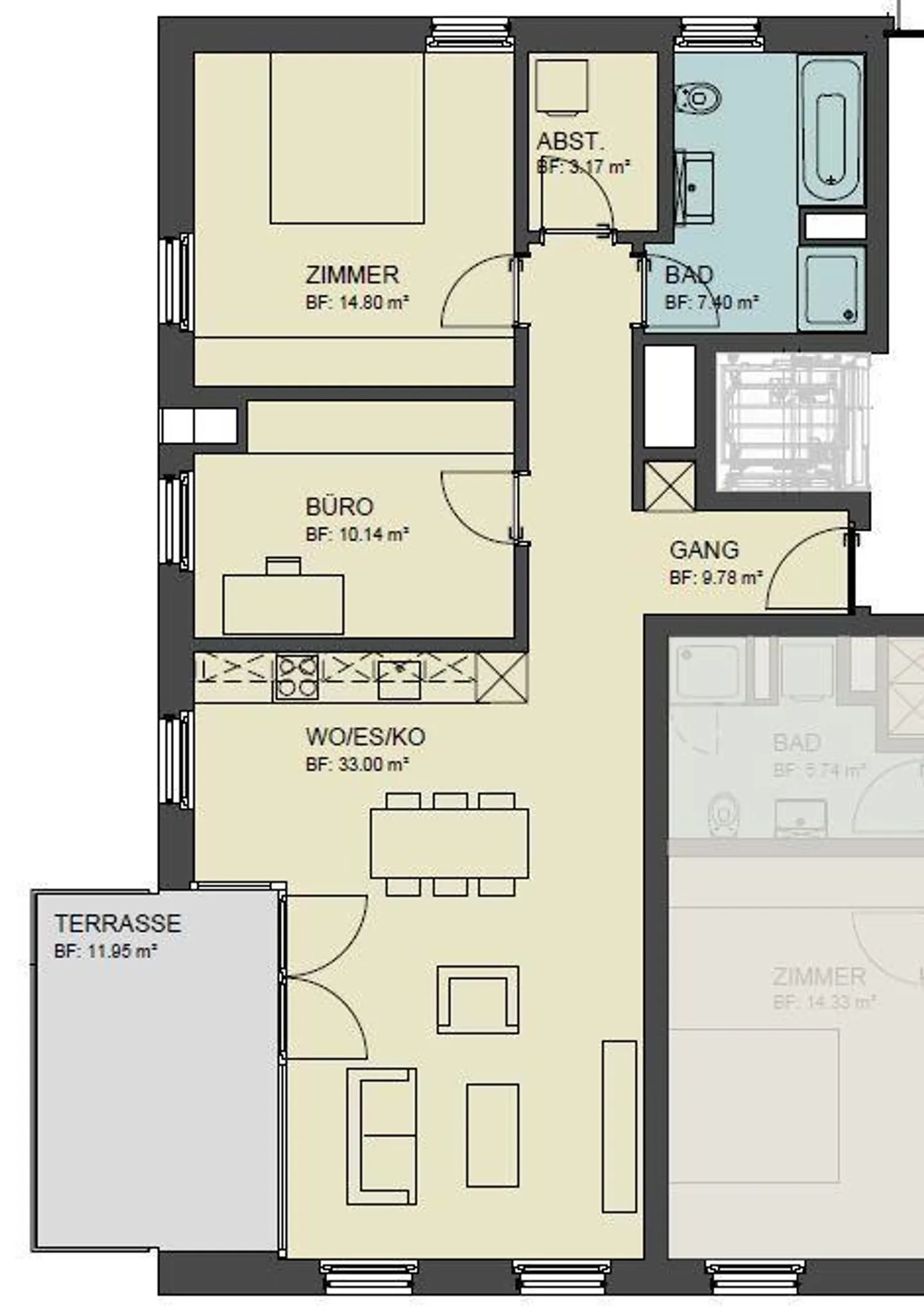
- Espace de vie lumineux et ouvert, ainsi qu'un balcon
- Emplacement calme avec vue dégagée
- Opportunités de nature et de loisirs juste devant votre porte, idéal pour des randonnées et des balades à vélo
Les points les plus importants en un coup d'œil :
Balcon : Oui
Ascenseur : Oui
Places de parking : Oui - Place de parking disponible pour CHF 120.- / mois
Veuillez noter que les images publiées sont d'un appartement de type similaire.
Pour un rendez-vous d...
Détail des loyers
- Loyer net
- CHF 1’650
- Coûts supplémentaires
- CHF 160
- Total des loyers
- CHF 1’650
Détails du bien
- Disponible à partir de
- Sur accord
- Pièces
- 3.5
- Surface habitable
- 78 m²
- Étage
- 1er



