Appartement à louer - Mülinenstrasse 27, 3006 Bern
Pourquoi vous aimerez ce bien
Balcon spacieux pour se détendre
Cuisine moderne avec granit
Proche des transports publics
Organiser une visite
Réserver une visite avec Hählen aujourd'hui !
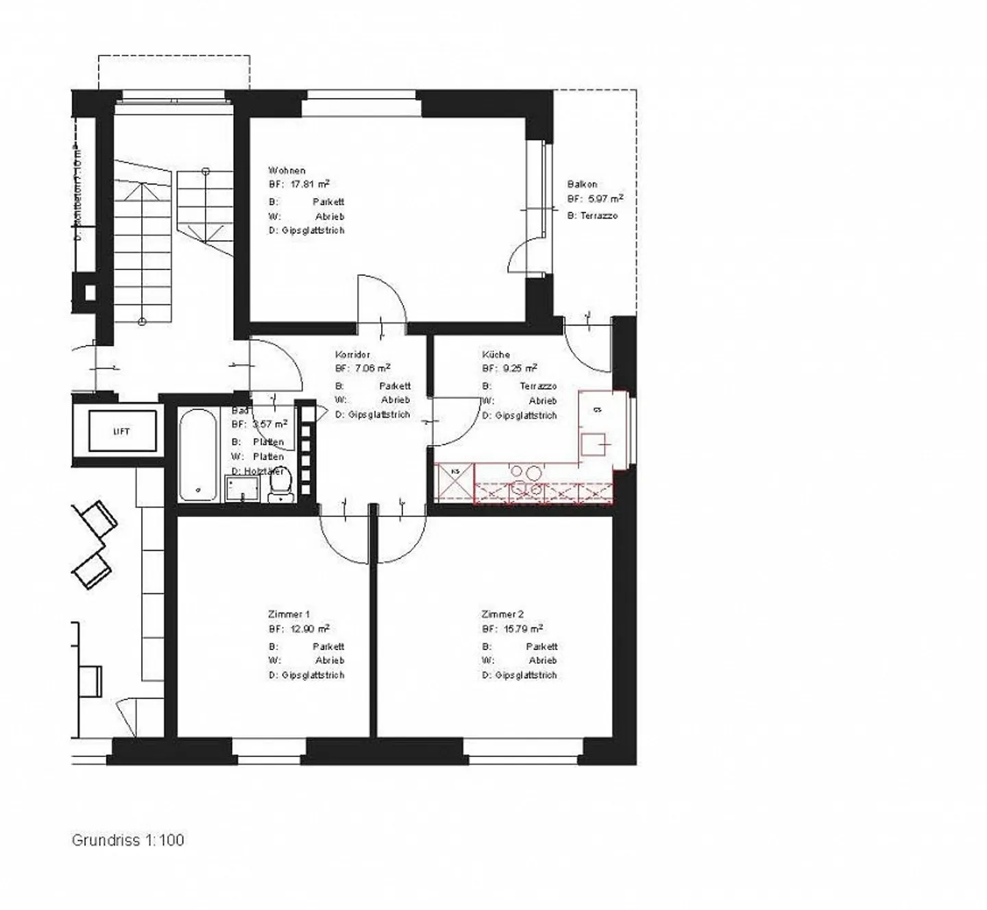
Appartement 3 pièces rénové dans le quartier elfenau pour première location
Nous louons un appartement 3 pièces fraîchement rénové pour première location à partir du 1er novembre 2025 ou selon arrangement à la Mülinenstrasse 27 à Berne au 4ème étage.
Les avantages de cet appartement sont :
- Cuisine avec plaque de cuisson en vitrocéramique, plan de travail en granit, four, lave-vaisselle, fenêtre et accès au balcon
- Deux chambres verrouillables
- Grand balcon
- Salle de bain avec baignoire, lavabo, meuble miroir et WC
- Parquet et carrelage au sol
- Cave et compartiment de gr...
Détail des loyers
- Loyer net
- CHF 1’950
- Coûts supplémentaires
- CHF 250
- Total des loyers
- CHF 1’950
Détails du bien
- Disponible à partir de
- Sur accord
- Pièces
- 3
- Année de rénovation
- 2025
- Étage
- 4ème
- Étages du bâtiment
- 5



