Appartement à louer - Chemin De La Grangette 27, 1010 Lausanne
Pourquoi vous aimerez ce bien
Espaces de vie lumineux
Terrasses privées pour se détendre
Finitions de haute qualité
Organiser une visite
Réserver une visite avec Alison aujourd'hui !
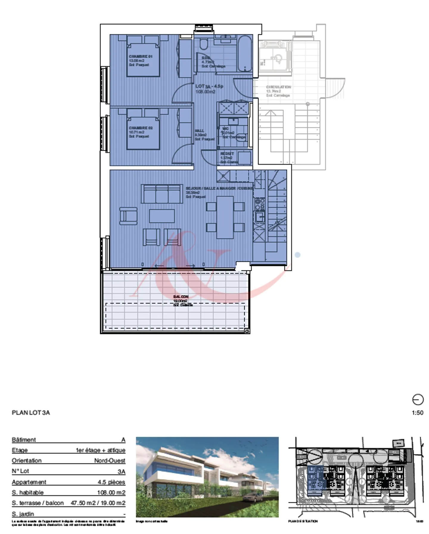
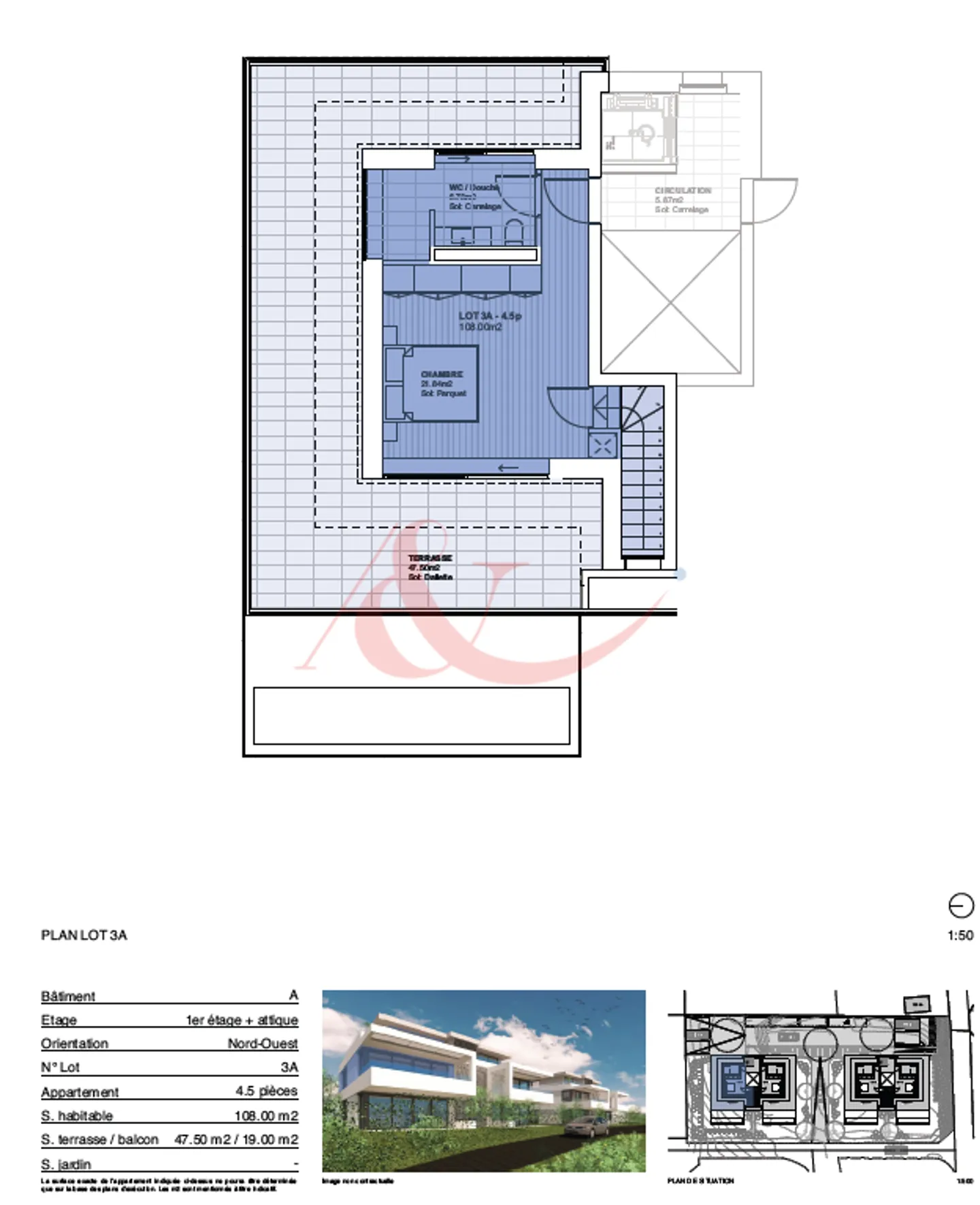
Appartement 4,5 pièces à louer ! lausanne
Nous avons le plaisir de vous présenter cette nouvelle promotion de deux bâtiments résidentiels de haut standing.
Dans un quartier résidentiel calme de Lausanne, à quelques minutes du centre-ville, le Chemin de la Grangette séduit par son atmosphère paisible et sa qualité de vie.
Ce quartier offre un environnement verdoyant, des connexions faciles aux transports publics et un accès rapide aux commerces, écoles et autoroutes, offrant un équilibre parfait entre tranquillité et proximité urbaine.
D...
Détail des loyers
- Loyer net
- CHF 4’000
- Coûts supplémentaires
- CHF 400
- Total des loyers
- CHF 4’000
Détails du bien
- Disponible à partir de
- Sur accord
- Pièces
- 4.5
- Année de construction
- 2025
- Surface habitable
- 108 m²
- Étages du bâtiment
- 3



