Appartement à louer - Sonnenring 26, 8590 Romanshorn
Pourquoi vous aimerez ce bien
Cuisine ouverte avec lave-vaisselle
Balcon spacieux et ensoleillé
Proche du lac de Constance
Organiser une visite
Réserver une visite avec Martina aujourd'hui !
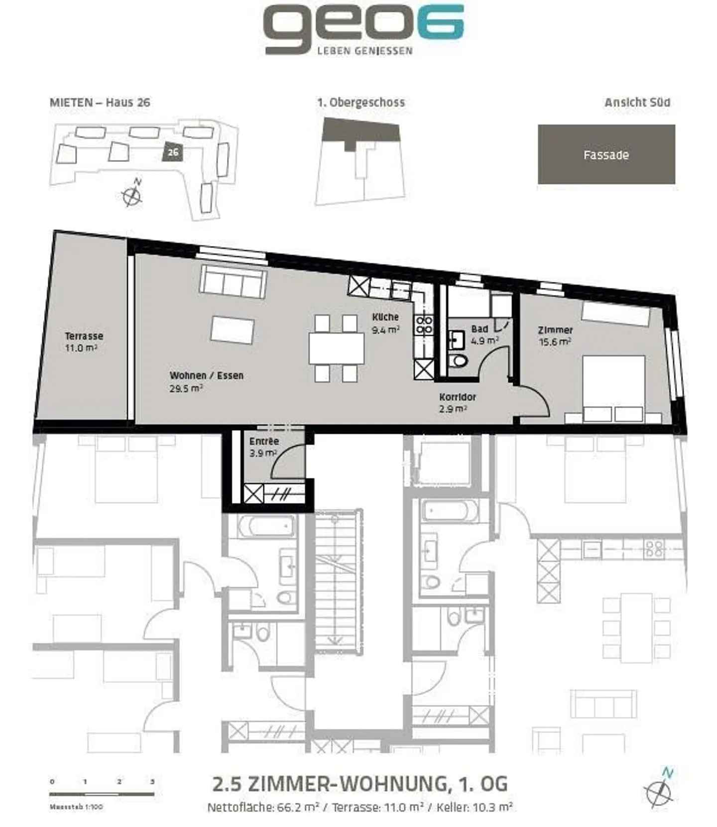
Bienvenue chez vous - calme, ensoleillé et spacieux
Vous cherchez un appartement moderne dans un emplacement central tout en étant entouré de verdure ? Alors vous êtes au bon endroit.
Cet appartement attrayant vous offre les commodités suivantes :
- cuisine moderne et ouverte avec plaque de cuisson en vitrocéramique et lave-vaisselle
- parquet dans le couloir, la cuisine ainsi que le salon/chambre
- carrelage dans les salles de bains
- salle de bain avec douche
- propre machine à laver et sèche-linge dans l'appartement
- balcon ensoleillé et spacieux
- g...
Détail des loyers
- Loyer net
- CHF 1’537
- Coûts supplémentaires
- CHF 150
- Total des loyers
- CHF 1’537
Détails du bien
- Disponible à partir de
- Sur accord
- Pièces
- 2.5
- Année de construction
- 2016
- Surface habitable
- 66 m²
- Étage
- 1er



