Appartement à louer - Etzmattrain 26, 3322 Urtenen-Schönbühl
Pourquoi vous aimerez ce bien
Cuisine moderne avec lave-vaisselle
Grand jardin ensoleillé
Beau cadre verdoyant
Organiser une visite
Réserver une visite avec Wincasa aujourd'hui !
Appartement ensoleillé avec coin jardin
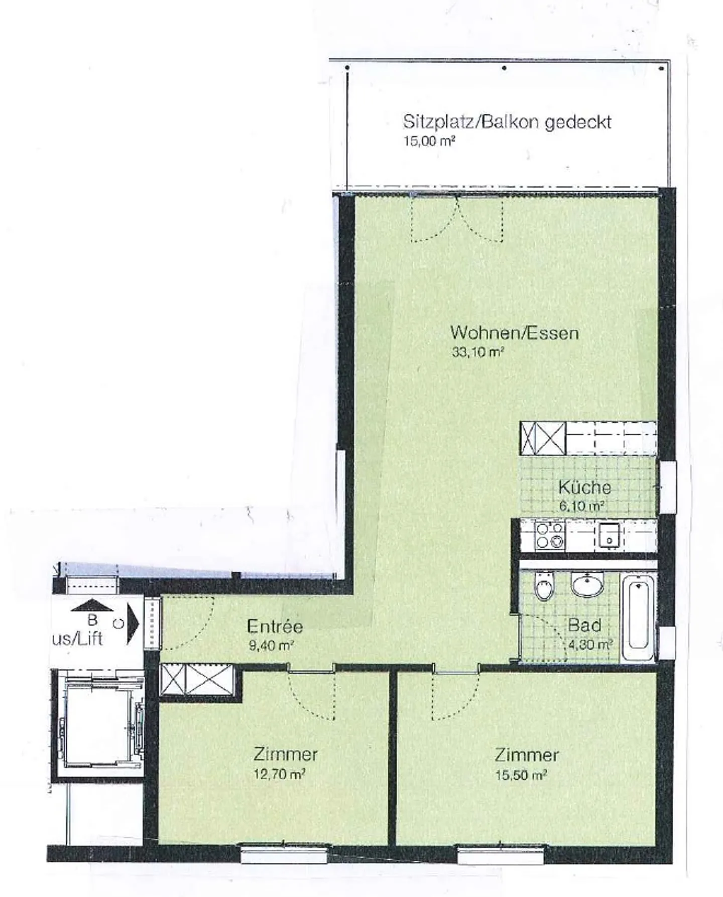
Nous louons un appartement lumineux avec les détails suivants :
- Parquet dans le salon et les chambres
- Carrelage dans la cuisine et la salle de bain
- Cuisine moderne avec lave-vaisselle et cuisinière en vitrocéramique
- Salle de bain avec baignoire et fenêtre
- Grand coin salon ensoleillé
- Belle construction dans la verdure
- Commodités et transports publics à proximité immédiate
Une place de parking peut être louée pour CHF 130.-/mois.
Êtes-vous intéressé ? Réservez dès aujourd'hui un rendez-vou...
Détail des loyers
- Loyer net
- CHF 1’930
- Coûts supplémentaires
- CHF 300
- Total des loyers
- CHF 1’930
Détails du bien
- Disponible à partir de
- Sur accord
- Pièces
- 3.5
- Année de construction
- 2008
- Surface habitable
- 81 m²
- Étage
- Rez



