Duplex à louer - Im Heumoos 25, 8906 Bonstetten
Pourquoi vous aimerez ce bien
Grande terrasse ensoleillée
Cuisine ouverte avec lave-vaisselle
Proche de la gare
Organiser une visite
Réserver une visite avec Wincasa aujourd'hui !
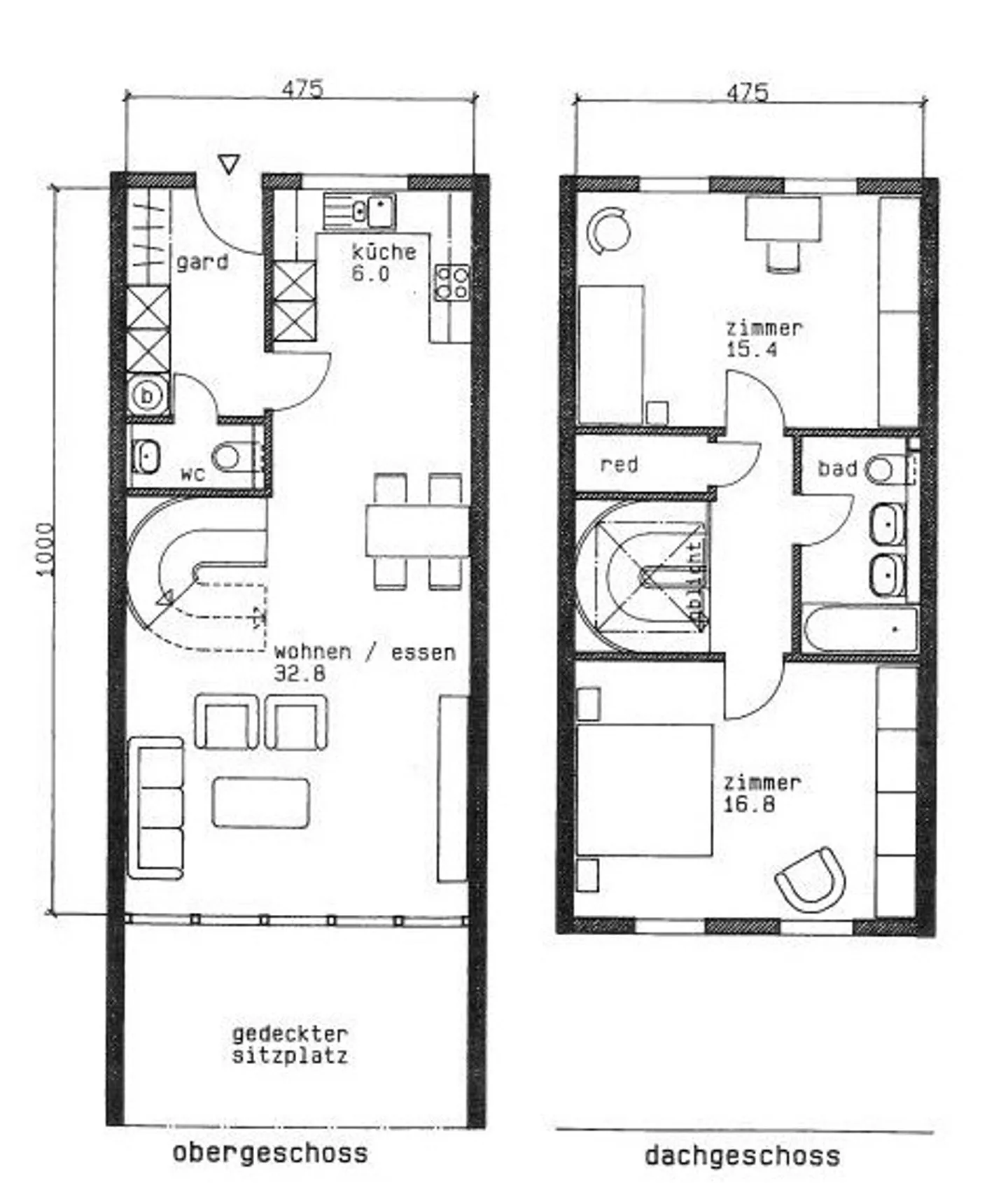
Nous louons cet appartement magnifique à partir du 1er octobre 2025 ou par arrangement, qui vous offre un joli chez-soi sur deux étages. Les caractéristiques suivantes vous attendent :- Salon/salle à manger et chambre avec parquet- Cuisine ouverte avec lave-vaisselle- Salle de bain et toilettes séparées- Chambres spacieuses- Ascenseur- Propre cave- Grand espace de vie couvert et ensoleillé- Gare à proximité immédiate- Centre Coop et petits magasins dans le développement- Des places de parking so...
Détail des loyers
- Loyer net
- CHF 2’555
- Coûts supplémentaires
- CHF 320
- Total des loyers
- CHF 2’555
Détails du bien
- Disponible à partir de
- Sur accord
- Pièces
- 3.5
- Année de construction
- 1995
- Surface habitable
- 91 m²
- Étage
- 1er



