Duplex à louer - Am Eulachpark 25, 8404 Winterthur
Pourquoi vous aimerez ce bien
Aménagement spacieux
Salles de bain rénovées
Coin salon ensoleillé
Organiser une visite
Réserver une visite aujourd'hui !
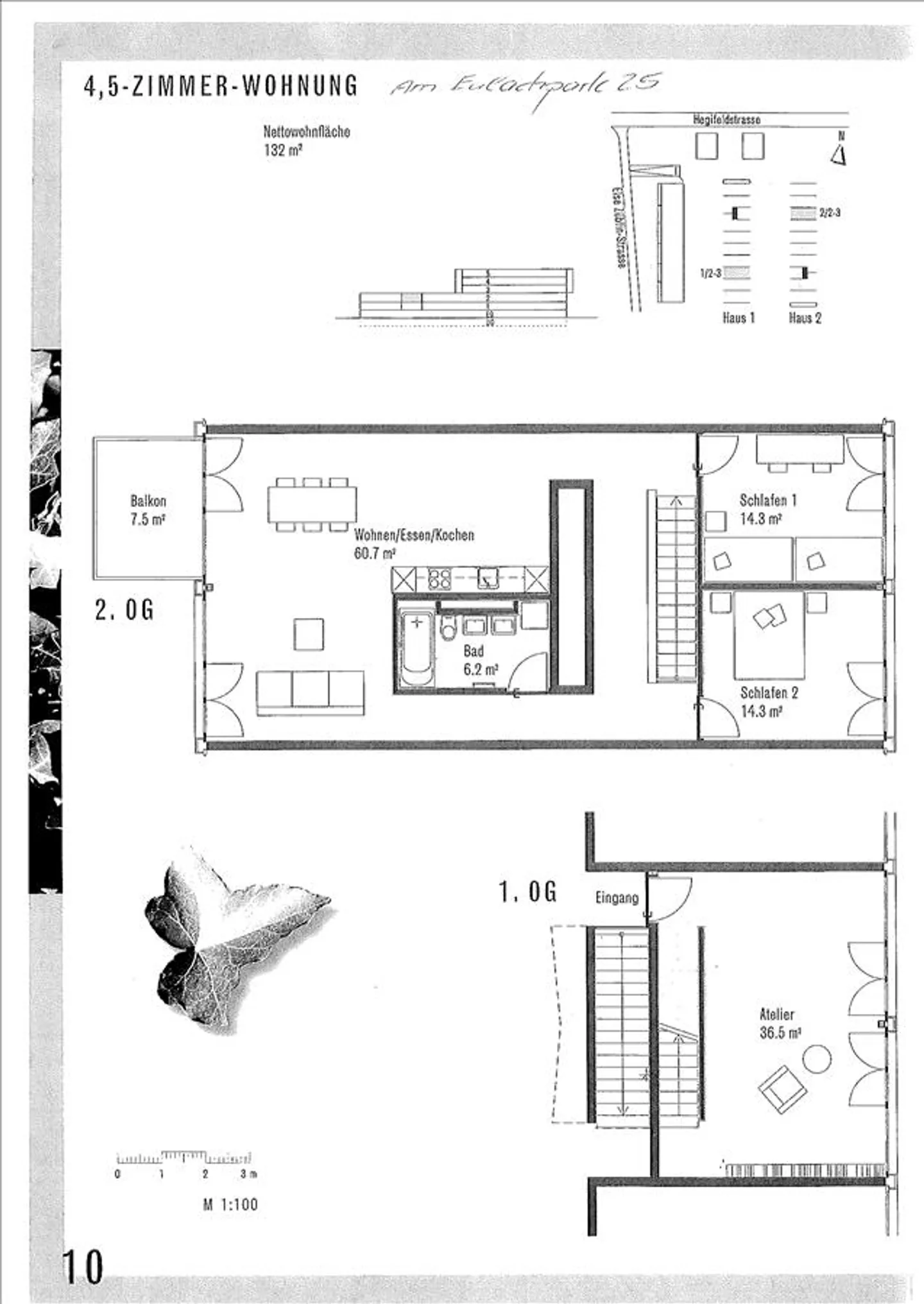
Duplex 4.5 pièces
beaucoup de qualité de vie dans un environnement verdoyant
Si vous êtes à la recherche d'un nouveau chez-vous avec un agencement généreux, alors vous êtes ici exactement au bon endroit.
- Agencement généreux et superbe
- Revêtements de sol en parquet à lattes
- Cuisine ouverte avec cuisinière en vitrocéramique, lave-vaisselle et cuiseur vapeur
- Fenêtres du sol au plafond
- Propre tour de lavage
- Salle de bain/WC avec double lavabo fraîchement rénové
- Douche/WC fraîchement rénové
- Bel et ensoleillé ...
Détail des loyers
- Loyer net
- CHF 2'900
- Coûts supplémentaires
- CHF 280
- Total des loyers
- CHF 2'900
Détails du bien
- Disponible à partir de
- Sur accord
- Pièces
- 4.5
- Surface habitable
- 132 m²



