Appartement à louer - Heinzenbergstrasse 24, 7430 Thusis
Pourquoi vous aimerez ce bien
Douche bien-être dans la salle de bain
Grand salon lumineux
Balcon ensoleillé avec parking
Organiser une visite
Réserver une visite avec Sutter aujourd'hui !
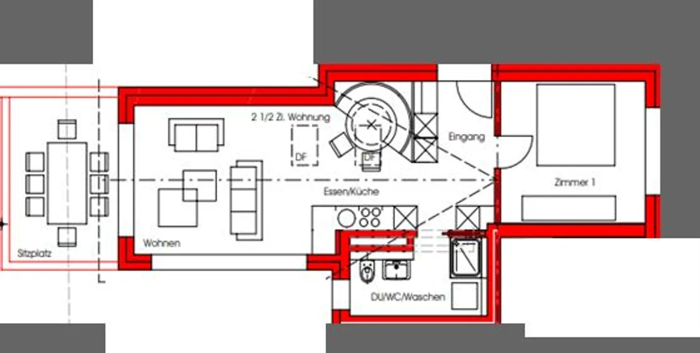
Appartement 2,5 pièces
À louer à Thusis, à partir du 1er avril 2026 ou sur arrangement
Appartement 2½ pièces (60m2)
Salle de bain/WC avec douche bien-être et machine à laver, grand salon lumineux, cuisine moderne et spacieuse avec lave-vaisselle, chambre, balcon (12m2) et place de parking à côté de l'entrée de la maison.
Loyer Fr. 1'450.- charges comprises (hors électricité).
Détails du bien
- Disponible à partir de
- Sur accord
- Pièces
- 2.5
- Année de construction
- 2022
- Année de rénovation
- 2022
- Surface habitable
- 60 m²
- Étage
- Rez
- Étages du bâtiment
- 3



