1 / 9

Appartement à louer - Rue Du Simplon 23, 1920 Martigny

2.5 pièces • 4ème étage
CHF 1’300.-
-

Pourquoi vous aimerez ce bien

Pièce à vivre lumineuse

Cuisine agencée moderne

Espace terrasse couvert

Organiser une visite

Réserver une visite avec Gefimmo aujourd'hui !

Gefimmo Gefimmo
Gefimmo Real-Estate SA

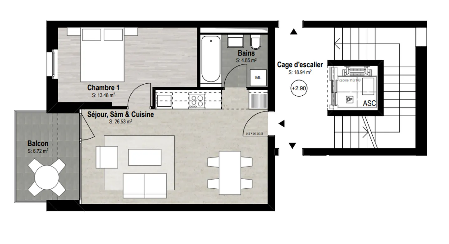
Bel appartement de 2.5 pièces idéalement situé à Martigny

Très bel appartement de 2,5 pièces à louer à Martigny dans un immeuble récent, idéalement situé, proche de la gare et de toutes commodités. 

Le bien se compose comme suit :

* Une cuisine agencée

* Une pièce à vivre lumineuse

* Une belle salle de bain avec espace pour colonne de lavage

* Une chambre

* Une terrasse vitrée

* Une cave

* Une place de parc intérieure

Loyer net : CHF 1'150.- 

Charges : CHF 150.-

Une place de parc intérieure : CHF 100.-

L...

Détails du bien

Disponible à partir de
Sur accord
Pièces
2.5
Étage
4ème

Caractéristiques

Balcon
Ascenseur

Agence

Gefimmo Real-Estate SA
Adresse:Rue de l'eglise 42, 1926, Fully
Ref: 5ef77dcd-ab3d-11f0-89d7-069ae14c7a06
En ligne depuis
17/10/2025
il y a 1 jour

Localisation

Rue Du Simplon 23, 1920 Martigny

Sources