Appartement à louer - Haslenstrasse 23, 8135 Langnau am Albis
Pourquoi vous aimerez ce bien
Cuisine moderne avec plans en pierre
Douche et WC séparés
Chauffage au sol dans tout l'appartement
Organiser une visite
Réserver une visite aujourd'hui !
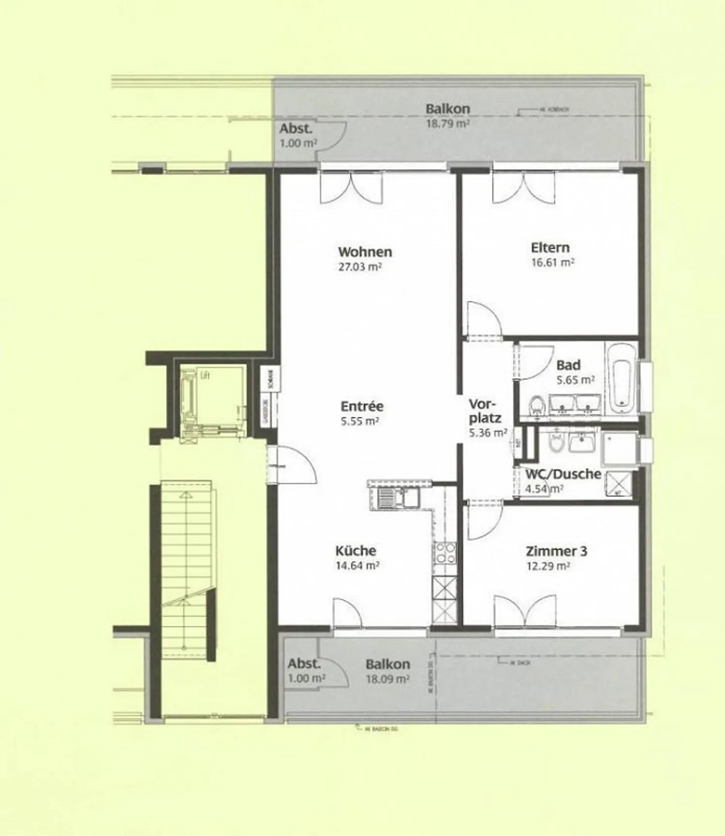
Appartement spacieux avec deux balcons
Nous louons cet appartement de 3 ½ pièces au 1er étage à droite, qui se caractérise par un agencement moderne et spacieux, à partir du 1er novembre 2025 ou par accord.
La cuisine spacieuse est équipée d'un plan de travail en pierre, d'une plaque de cuisson en vitrocéramique, d'un micro-ondes, d'un four, d'une combinaison réfrigérateur-congélateur, d'un lave-vaisselle et d'une hotte.
L'appartement dispose d'une salle de bain/WC et d'une douche/WC séparée avec sa propre tour de lavage.
Les revêtement...
Détail des loyers
- Loyer net
- CHF 2’367
- Coûts supplémentaires
- CHF 215
- Total des loyers
- CHF 2’367
Détails du bien
- Disponible à partir de
- Sur accord
- Pièces
- 3.5
- Surface habitable
- 98 m²
- Étage
- 1er



