Appartement en terrasse à louer - Domleschgerstrasse 22, 7411 Sils im Domleschg
Pourquoi vous aimerez ce bien
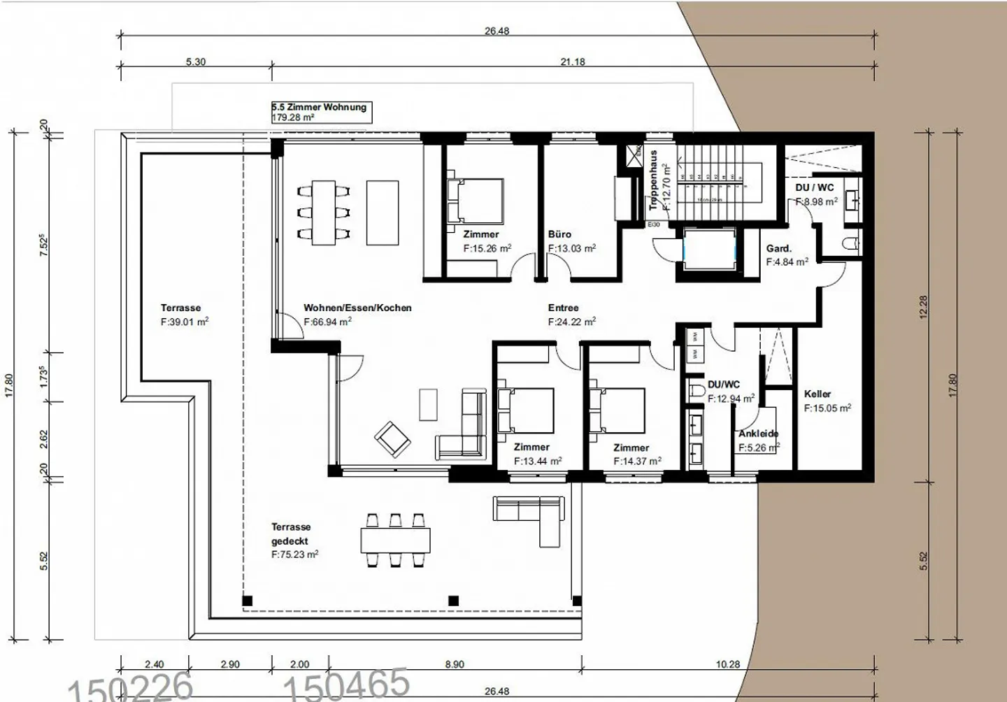
Terrasse spacieuse de 75.23m²
Accès direct par ascenseur
Appareils de cuisine haut de gamme
Organiser une visite
Réserver une visite avec Die aujourd'hui !
Appartement de rêve dans une nouvelle maison avec terrasse - première occupation
Nous recherchons de nouveaux locataires pour le superbe appartement suivant dans le beau Domleschg - il sera prêt à être occupé à partir du 1.4.26 et dispose de toutes les commodités que l'on peut souhaiter. De plus, l'appartement sera construit selon des normes adaptées aux personnes âgées à tous égards. Cela signifie que tout est sans seuil, l'ascenseur va directement dans l'appartement, les douches sont de plain-pied et de nombreux autres avantages sont réunis dans ce bien d'une qualité uniqu...
Détail des loyers
- Loyer net
- CHF 2’800
- Coûts supplémentaires
- CHF 400
- Total des loyers
- CHF 2’800
Détails du bien
- Disponible à partir de
- Sur accord
- Pièces
- 5.5
- Année de construction
- 2025
- Surface habitable
- 179.3 m²
- Étage
- 2ème
- Étages du bâtiment
- 4



