Appartement en terrasse à louer - Route De Chamblioux 21, 1763 Granges-Paccot
Pourquoi vous aimerez ce bien
Espace de vie spacieux 28.3m2
Terrasse orientée sud
Chauffage géothermique écologique
Organiser une visite
Réserver une visite aujourd'hui !
Appartement terrasse 2.5 pièces
Projet neuf à venir à Granges-Paccot
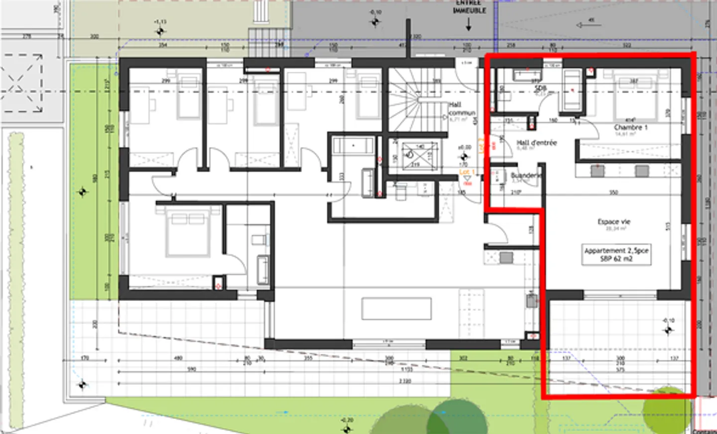
Lot 2 : Appartement 2.5pces env. 62m2 avec terrasse
Le logement a été soigneusement pensé pour offrir des espaces de vie fonctionnels, lumineux et harmonieux.
✅ Cuisine ouverte sur espace de vie de 28.3m2
✅ 1 chambre à coucher de 14.6 m2
✅ Salle de bain
✅ Buanderie avec tour de lavage
✅ Terrasse / Exposition Sud
✅ Cave
✨ Ce qui fait la différence :
- Architecture contemporaine et finitions de qualité
- Volumes optimisés et espaces de vie généreux
🌿 Un choix durable ...
Détail des loyers
- Loyer net
- CHF 1’810
- Coûts supplémentaires
- CHF 160
- Total des loyers
- CHF 1’810
Détails du bien
- Disponible à partir de
- Sur accord
- Pièces
- 2.5
- Salles de bain
- 1
- Surface habitable
- 62 m²



