Appartement à louer - Müllerwis 21, 8606 Greifensee
Pourquoi vous aimerez ce bien
Cuisine moderne avec lave-vaisselle
Balcon pour se détendre
Proche de la station S-Bahn
Organiser une visite
Réserver une visite aujourd'hui !
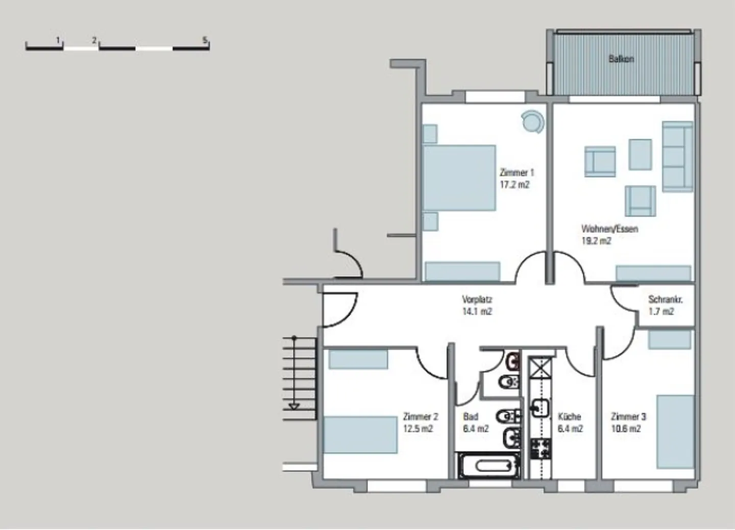
Votre nouveau chez-soi confortable !
Cet appartement de 4 pièces dans le développement familial offre les avantages suivants :
- Espace de vie et de sommeil avec parquet
- Cuisine et salle de bain avec carrelage
- Cuisine moderne avec lave-vaisselle et vitrocéramique
- Salle de bain avec WC
- WC séparé
- Réduit
- Balcon
- Ascenseur disponible
- Animaux de compagnie autorisés avec autorisation
- Places de parking disponibles pour CHF 125.00
- Proche de la station S-Bahn Nänikon-Greifensee
- Bonnes possibilités d'achat
- À environ 10 minutes à pi...
Détail des loyers
- Loyer net
- CHF 2’045
- Coûts supplémentaires
- CHF 265
- Total des loyers
- CHF 2’045
Détails du bien
- Disponible à partir de
- 01.02.2026
- Pièces
- 4
- Année de construction
- 1968
- Surface habitable
- 90 m²
- Étage
- 4ème



