Appartement à louer - Brandstrasse 21, 8340 Hinwil
Pourquoi vous aimerez ce bien
Grand espace de vie lumineux
Balcon à l'abri des intempéries
Idéal pour familles ou couples
Organiser une visite
Réserver une visite avec Fejzulai aujourd'hui !
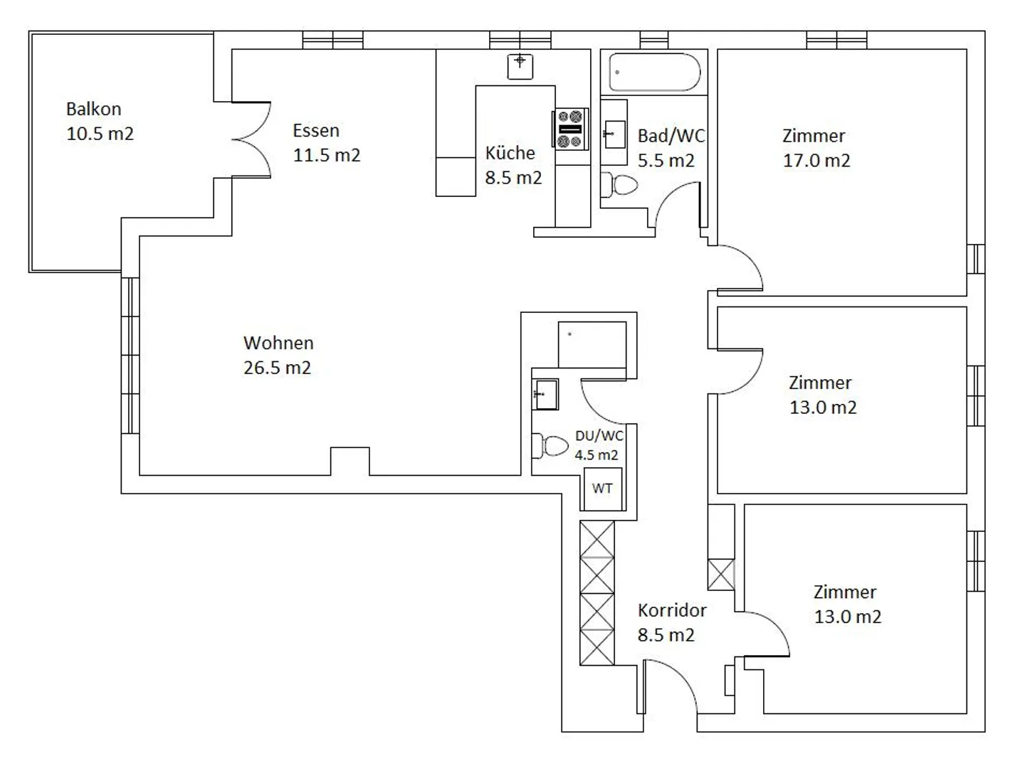
Appartement lumineux de 4,5 pièces à l'emplacement idéal à hinwil
L'agencement efficace des pièces avec un grand espace de vie/salle à manger ouvert offre le cadre idéal pour les familles ou les couples. Les trois pièces séparées peuvent être utilisées comme chambres ou, par exemple, comme bureau ou salle d'entraînement. Le quartier calme crée un environnement sûr où les enfants peuvent jouer librement, et sur le balcon spacieux, vous pouvez profiter d'heures agréables par tous les temps grâce aux panneaux en verre coulissants.
La propriété offre une ambiance d...
Détail des loyers
- Loyer net
- CHF 2’690
- Coûts supplémentaires
- CHF 290
- Total des loyers
- CHF 2’690
Détails du bien
- Disponible à partir de
- Sur accord
- Pièces
- 4.5
- Année de construction
- 2005
- Surface habitable
- 108 m²
- Étage
- 1er
- Étages du bâtiment
- 3



