Appartement à louer - Chisenmattweg 20b, 3510 Konolfingen
Pourquoi vous aimerez ce bien
Cuisine moderne spacieuse
Grand balcon de 25.7m2
Emplacement central calme
Organiser une visite
Réserver une visite avec Jara aujourd'hui !
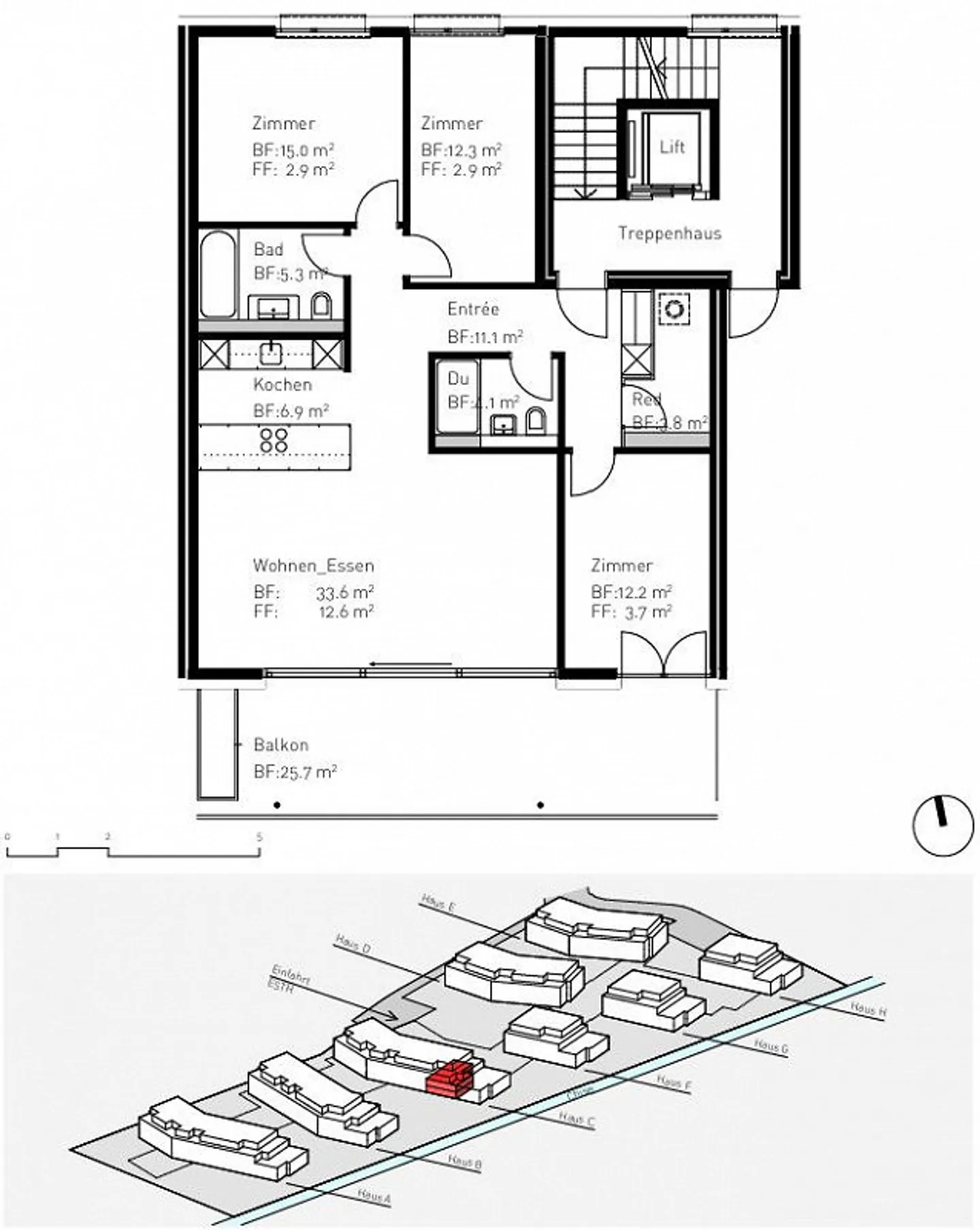
Charmanter, ländlicher Wohntraum gesucht?
Sie suchen eine neue Wohnung an ruhiger und dennoch zentraler Lage? Dann haben wir das passende Objekt für Sie! Die 4.5-Zimmer-Wohnung im 1.OG verfügt über folgende Vorzüge:
* grosszügige, moderne und offene Küche mit Glaskeramikfeld, Backofen, Geschirrspüler und Kühlschrank inkl. drei separaten Gefrierfächer
* Nasszellen mit Badewanne und Dusche
* Eingangsbereich mit Garderobe und Einbauschränken
* Parkettboden in Wohn- und Schlafzimmern, Plattenboden in den restlichen Räumen
* Reduit mit Wasseransc...
Détail des loyers
- Loyer net
- CHF 2'300
- Coûts supplémentaires
- CHF 300
- Total des loyers
- CHF 2'300
Détails du bien
- Disponible à partir de
- 01.03.2026
- Pièces
- 4.5
- Année de construction
- 2014
- Surface habitable
- 104 m²
- Étage
- 1er
- Étages du bâtiment
- 3


