Appartement à louer - Marienstrasse 20, 8003 Zürich
Pourquoi vous aimerez ce bien
Emplacement central privilégié
Chambres lumineuses et calmes
Accès Internet rapide
Organiser une visite
Réserver une visite avec Bär aujourd'hui !
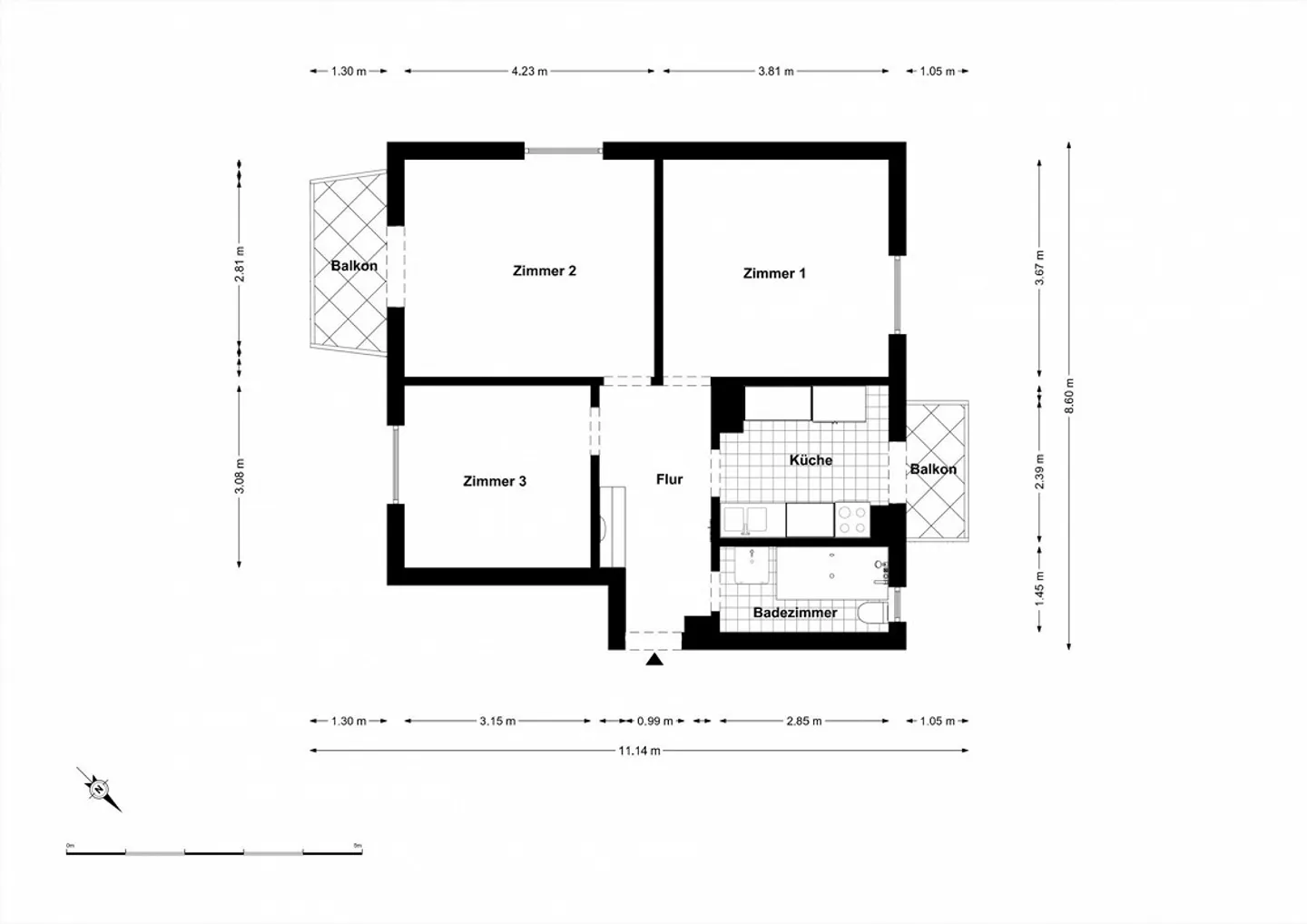
Au cœur de zurich - charmant appartement 3 pièces près de lochergut
Cet élégant appartement de 3 pièces est situé dans le quartier animé et populaire du District 4, juste à côté de Lochergut.
Emplacement : L'appartement est situé dans un emplacement central privilégié, à quelques pas de nombreux commerces. Des centres de fitness, des parcs et divers services se trouvent également à proximité immédiate. La diversité des restaurants, cafés et bars donne au quartier une atmosphère distinctive.
Transports en commun : Cet emplacement est extrêmement facile d'accès. L'a...
Détail des loyers
- Loyer net
- CHF 2’560
- Coûts supplémentaires
- CHF 160
- Total des loyers
- CHF 2’560
Détails du bien
- Disponible à partir de
- Sur accord
- Pièces
- 3
- Surface habitable
- 58 m²
- Étage
- 2ème



