Appartement à louer - Peteracher 2, 8126 Zumikon
Pourquoi vous aimerez ce bien
Balcon ensoleillé
Cuisine moderne équipée
Cheminée dans le salon
Organiser une visite
Réserver une visite avec Yanick aujourd'hui !
Vie moderne à Zumikon
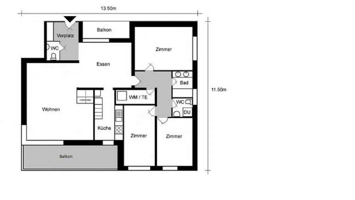
Nous louons cet appartement moderne de 4,5 pièces au 4ème étage (ascenseur disponible) qui vous offre le standard de finition suivant :
- cuisine moderne avec cuisinière en vitrocéramique, four, réfrigérateur et plan de travail en granit
- salle de bain avec baignoire/WC/lavabo
- WC invités séparé
- salon/chambre avec sol stratifié
- cheminée dans le salon
- placards intégrés pratiques dans le couloir
- balcon ensoleillé
Si vous le souhaitez, une place de parking peut être louée en supplément.
La proprié...
Détail des loyers
- Loyer net
- CHF 3’150
- Coûts supplémentaires
- CHF 350
- Total des loyers
- CHF 3’150
Détails du bien
- Disponible à partir de
- Sur accord
- Pièces
- 4.5
- Année de construction
- 1974
- Surface habitable
- 115 m²
- Étage
- 4ème



