1 / 9

Attique à louer - Mattenweg 2, 4702 Oensingen

3.5 pièces • 120 m² • 2ème étage
CHF 1’725.-
CHF 173 m² / year

Pourquoi vous aimerez ce bien

Espace de vie lumineux

Balcon ensoleillé pour se détendre

Cuisine moderne avec îlot

Organiser une visite

Réserver une visite aujourd'hui !

Cette description a été traduite automatiquement depuis Allemand.

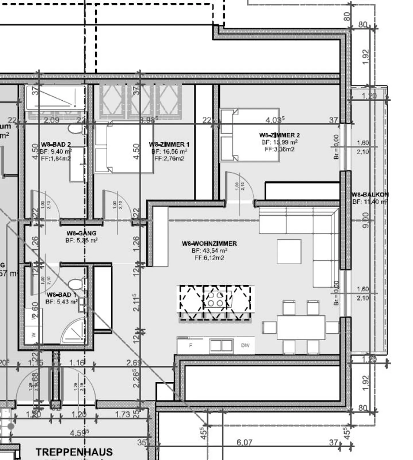
Appartement penthouse spacieux de 3,5 pièces (107 m²) avec balcon à oensingen

Vivre avec style et confort : Ce lumineux appartement penthouse de 3,5 pièces impressionne par son espace, ses équipements modernes et le charme particulier des plafonds en pente. Vous pouvez facilement et sans obstacle accéder à l'appartement avec l'ascenseur. Points forts : Espace de vie et de salle à manger ouvert avec cuisine moderne et îlot de cuisson Deux salles de bains (douche et baignoire) Propre machine à laver et sèche-linge dans l'appartement Balcon ensoleillé Sol en grès cérame faci...

Détails du bien

Disponible à partir de
Sur accord
Pièces
3.5
Année de construction
2020
Surface habitable
120
Étage
2ème

Caractéristiques

Balcon
TV par câble
Adapté aux enfants
Animaux domestiques acceptés

Agence

Localisation

Mattenweg 2, 4702 Oensingen

Sources