Appartement à louer - Im Grund 2, 8486 Rikon im Tösstal
Pourquoi vous aimerez ce bien
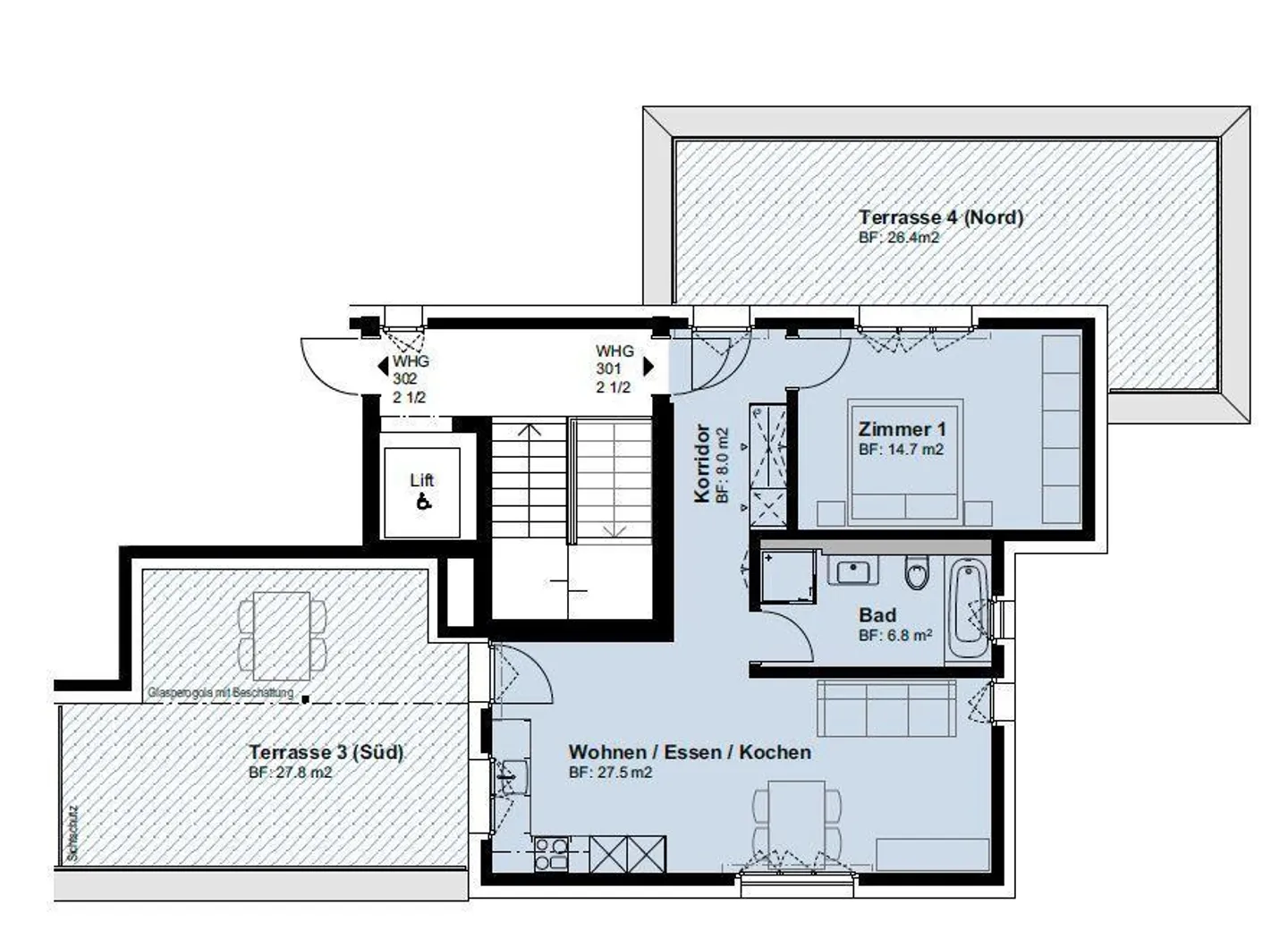
Terrasses spacieuses
Cuisine moderne ouverte
Buanderie privée au sous-sol
Organiser une visite
Réserver une visite avec Ramona aujourd'hui !
Appartement moderne avec deux grandes terrasses sur le toit
Dès maintenant ou sur rendez-vous, nous louons cet appartement neuf à Rikon.
L'appartement en un coup d'œil :
- Cuisine ouverte moderne
- Salle de bain avec baignoire et douche
- Carrelage en grès cérame dans tout l'appartement
- Deux grandes terrasses (partiellement avec toit en verre)
- Tour de lavage privée dans le compartiment de la cave
- Ascenseur...
Dans le parking souterrain, une place de parking peut être louée pour CHF 130.00/mois et une place de parking moto pour CHF 50.00/mois.
Les dates de visite sont...
Détail des loyers
- Loyer net
- CHF 1'960
- Coûts supplémentaires
- CHF 240
- Total des loyers
- CHF 1'960
Détails du bien
- Disponible à partir de
- 01.06.2026
- Pièces
- 2.5
- Surface habitable
- 57 m²
- Étage
- 3ème



