Appartement à louer - Hostettlerweg 2, 3006 Bern
Pourquoi vous aimerez ce bien
Vue imprenable depuis la terrasse
Cuisine ouverte moderne
Finitions de haute qualité
Organiser une visite
Réserver une visite aujourd'hui !
Luxe de vie urbaine dans un emplacement recherché
Qualité de vie dans la ville de Berne. Schönberg Ost, un quartier résidentiel urbain au cœur du quartier résidentiel populaire et exclusif de Schosshalde. Emplacement de transport idéal et grande valeur récréative - ici, vous trouverez le luxe d'une manière différente. De Schönberg-Ost, il y a une vue magnifique jusqu'aux hauteurs du Jura, sur le Bantiger jusqu'au Gurten. Au loin, les sommets enneigés des Alpes bernoises vous saluent.
Pour votre qualité de vie :
- cuisine ouverte avec plaque de cu...
Détail des loyers
- Loyer net
- CHF 5’750
- Coûts supplémentaires
- CHF 550
- Total des loyers
- CHF 5’750
Détails du bien
- Disponible à partir de
- 01.06.2026
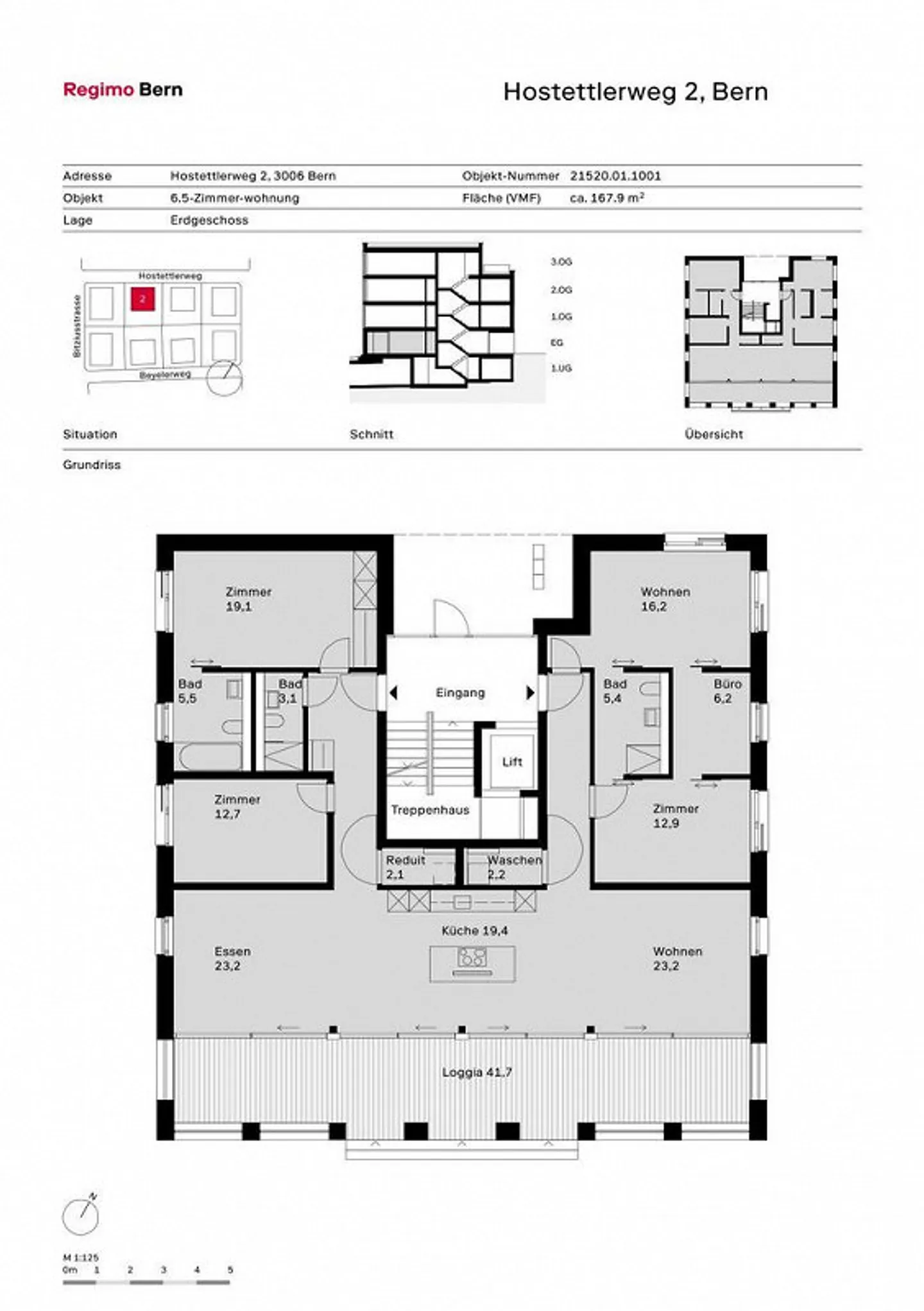
- Pièces
- 6.5
- Année de construction
- 2016
- Surface habitable
- 167 m²
- Étage
- Rez



