Appartement à louer - Chemin Du Levant 2, 1315 La Sarraz
Pourquoi vous aimerez ce bien
Cuisine ouverte spacieuse
Proche des écoles et magasins
Grand terrain de jeux à proximité
Organiser une visite
Réserver une visite avec Kui-Hang aujourd'hui !
Appartement dans un quartier familial.
À louer dès le 1er mai 2026.
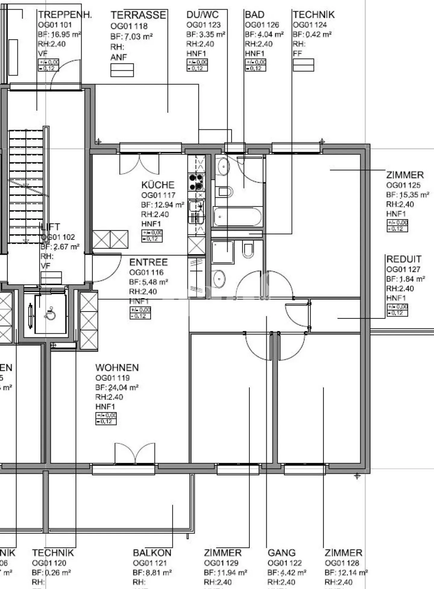
Appartement de 4.5 pièces au 1er étage (environ 98m2).
Ce joli appartement se trouve, proches des magasins, des écoles et de toutes les commodités.
L'appartement se compose comme suit:
- hall avec armoires
- cuisine équipée (frigo-congélateur, four, plaque vitrocéramique, hotte et lave-vaisselle) et agencée ouverte sur le grand séjour
- 1 grand séjour
- 1 couloir
- 3 chambres fermées
- 1 cagibi
- une salle de douches
- une salle-de-bains attenante à la chambre parentale
- un ba...
Détail des loyers
- Loyer net
- CHF 1’853
- Coûts supplémentaires
- CHF 400
- Total des loyers
- CHF 2’253
Détails du bien
- Disponible à partir de
- 30.04.2026
- Pièces
- 4.5
- Année de construction
- 2008
- Surface habitable
- 98 m²
- Étage
- 1er




