Appartement à louer - Route Du Tonkin 1d, 1897 Bouveret
Pourquoi vous aimerez ce bien
Espace de vie spacieux de 80m²
Grande terrasse pour se détendre
Proche du lac Léman
Organiser une visite
Réserver une visite avec Une aujourd'hui !
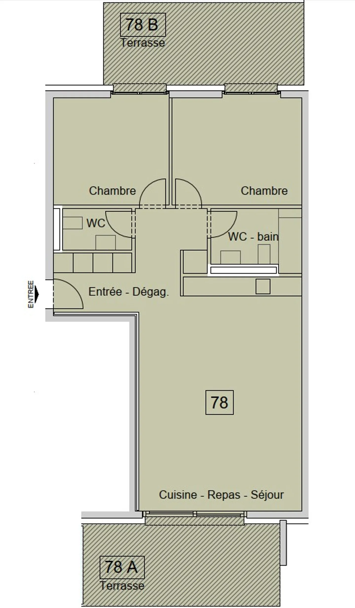
Magnifique appartement de 3.5 pièces
A 10 minutes à pied du lac léman et proche de la gare, Le Tonkin est un récent quartier résidentiel.
Le magnifique appartement de 80m2, offre un bel espace confortable avec une grande terrasse
Il comprend :
- un hall d'entrée
- une cuisine parfaitement agencée
- une salle de bains et WC séparé
- un séjour avec grand balcon
- deux chambre à coucher
(photos non contractuelles)
Une visite groupée aura lieu le 28.10.2025 de 10h00 à 12h00.
Disponibilité: dès le 16.10.2025 ou à convenir
Une fois la visite ef...
Détail des loyers
- Loyer net
- CHF 1’820
- Coûts supplémentaires
- CHF 200
- Total des loyers
- CHF 1’820
Détails du bien
- Disponible à partir de
- Sur accord
- Pièces
- 3.5
- Année de construction
- 2019
- Surface habitable
- 80 m²
- Étage
- Rez


