Attique à louer - Blumenstrasse 19, 4106 Therwil
Pourquoi vous aimerez ce bien
Cuisine ouverte avec îlot
Grande terrasse avec vue
Salles de bains modernes
Organiser une visite
Réserver une visite avec Max aujourd'hui !
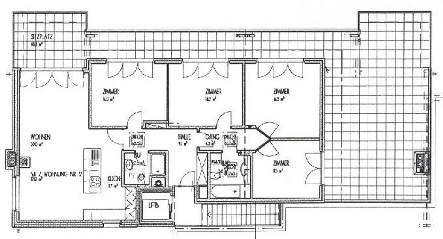
Appartement penthouse lumineux de 5,5 pièces dans un emplacement parfait avec vue !
Dans un emplacement calme mais central à Therwil, nous louons un appartement penthouse de 5,5 pièces avec une vue magnifique à partir du 1er juin 2026 ou par arrangement !
-Cuisine ouverte avec îlot de cuisson et plan de travail en pierre naturelle, plaque de cuisson en vitrocéramique, lave-vaisselle et four en hauteur
-Poêle à cheminée dans l'appartement
-Toutes les chambres ont un accès direct à la grande terrasse du penthouse !
-Raccordement d'eau et d'électricité ainsi que store solaire électriq...
Détail des loyers
- Loyer net
- CHF 3’240
- Coûts supplémentaires
- CHF 440
- Total des loyers
- CHF 3’240
Détails du bien
- Disponible à partir de
- 01.06.2026
- Pièces
- 5.5
- Année de construction
- 2003
- Surface habitable
- 120 m²



