Appartement à louer - Forchstrasse 185a, 8132 Hinteregg
Pourquoi vous aimerez ce bien
Espace de vie confortable
Cuisine moderne avec appareils
Proche des transports publics
Organiser une visite
Réserver une visite aujourd'hui !
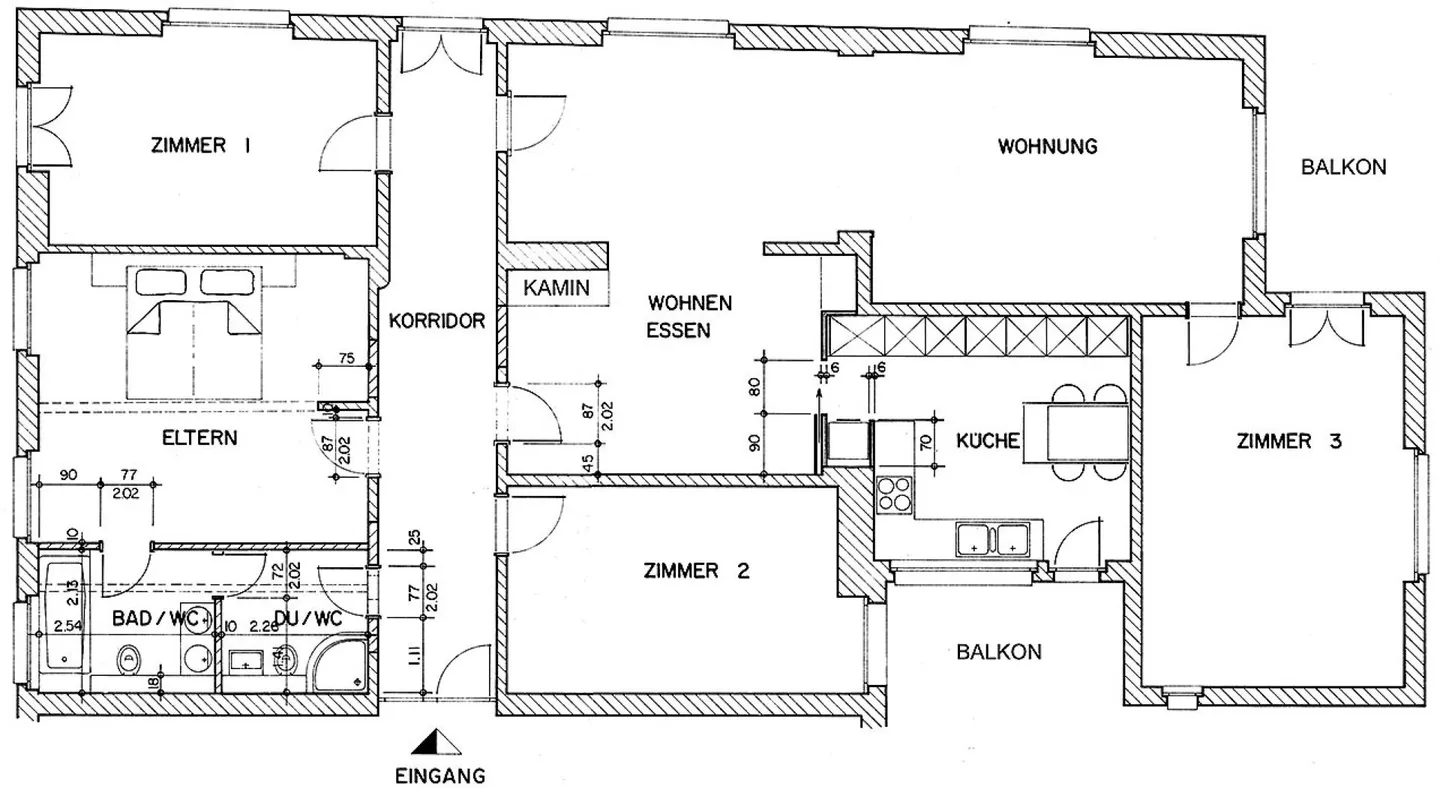
Appartement spacieux avec deux balcons
Cet appartement spacieux de 5,5 pièces est situé dans un emplacement central et vous offre le standard de finition suivant :
* espace de vie et de salle à manger généreux avec une cheminée confortable
* grande cuisine presque neuve avec four en hauteur, lave-vaisselle et réfrigérateur avec compartiments congélateurs séparés
* propre machine à laver et sèche-linge
* quatre grandes chambres séparées avec de beaux parquets
* salle de bain avec baignoire, WC, double lavabo et lumière du jour en suite à l...
Détail des loyers
- Loyer net
- CHF 2’910
- Coûts supplémentaires
- CHF 450
- Total des loyers
- CHF 2’910
Détails du bien
- Disponible à partir de
- 01.06.2026
- Pièces
- 5.5
- Année de rénovation
- 2022
- Surface habitable
- 170 m²
- Étage
- 1er



