1 / 10

Appartement à louer - Rückimattweg 16, 3312 Fraubrunnen

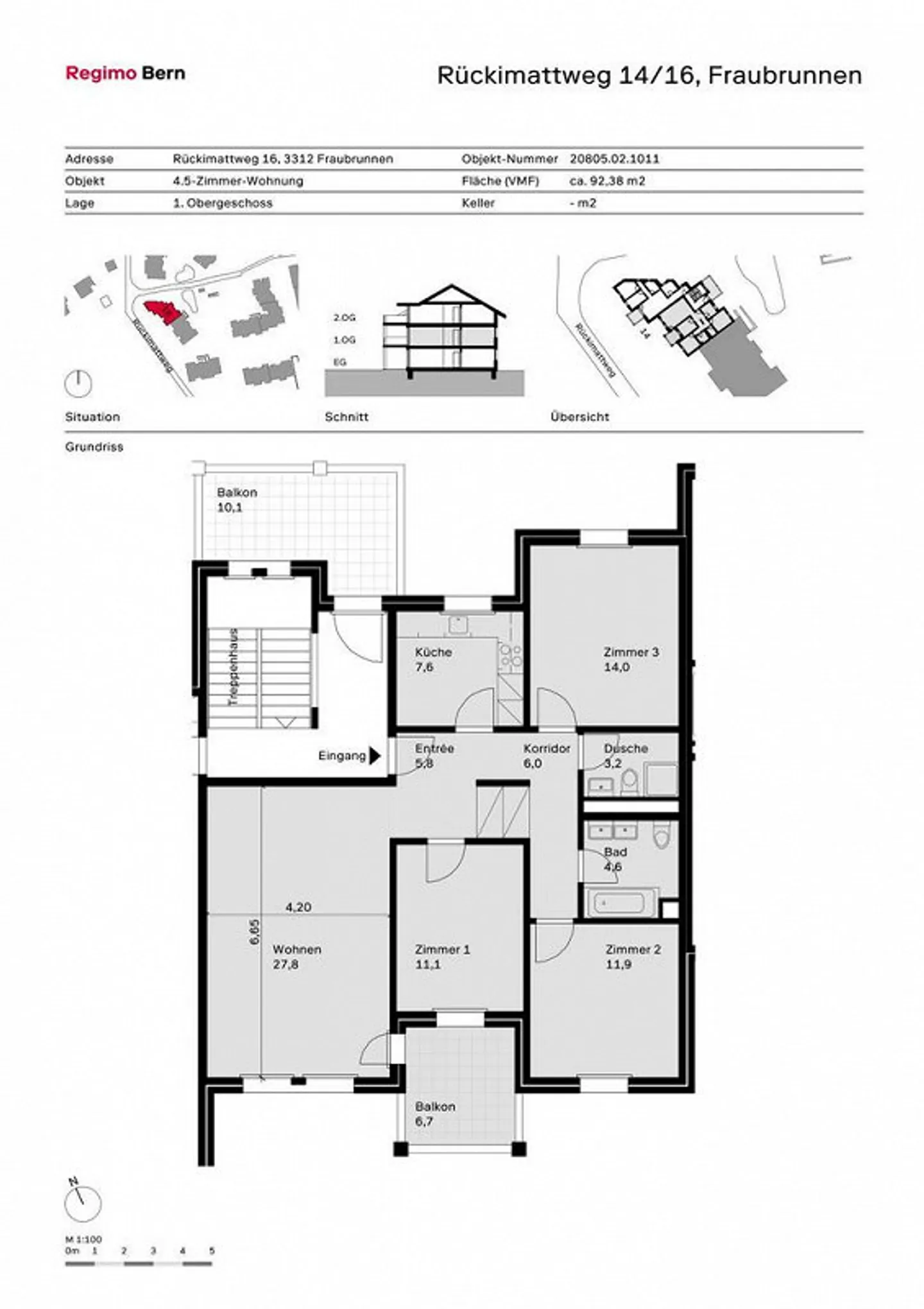
4.5 rooms • 92 m² • 1er étage
CHF 1’702.-
CHF 222 m² / year

Pourquoi vous aimerez ce bien

Grand terrain de jeux

Nouvelle cuisine avec lave-vaisselle

Accès pratique aux transports

Organiser une visite

Réserver une visite aujourd'hui !

Regimo Bern AG
Cette description a été traduite automatiquement depuis Allemand.

Ici, les familles profitent de nombreux avantages

Voulez-vous vivre près du centre tout en étant dans un environnement verdoyant ? Dans cet appartement, toute la famille se sentira à l'aise. Vos enfants peuvent déjà se réjouir du terrain de jeux généreusement aménagé. Pratique pour vous, la connexion du quartier résidentiel aux transports publics et les commerces à proximité.

Pour votre qualité de vie :

- nouvelle cuisine avec vitrocéramique et lave-vaisselle

- nouvelle salle de bain avec baignoire/WC et douche

- parquet dans le salon et les chambr...

Détails du bien

Disponible à partir de
16.12.2025
Pièces
4.5
Surface habitable
92
Étage
1er

Caractéristiques

Garage
Animaux domestiques acceptés

Agence

Regimo Bern AG
Ref: 20805.02.1011

Localisation

Rückimattweg 16, 3312 Fraubrunnen

Sources