Appartement à louer - Obere Steinweide 16, 3713 Reichenbach im Kandertal
Pourquoi vous aimerez ce bien
Vues panoramiques époustouflantes
Conception écoénergétique
Village de montagne calme
Organiser une visite
Réserver une visite aujourd'hui !
Appartements neufs modernes de 3.5 et 4.5 pièces (appartements de première occupation et de vacances)
Première location de magnifiques appartements
- Les prix de tous les appartements se trouvent dans le document 'Maison Oberland Brochure' ainsi que sur notre site web www.maisonoberland.com.
Vivez là où l'Oberland bernois est le plus beau. (non meublé)
Bienvenue à Faltschen – un village de montagne ensoleillé et calme au-dessus de Reichenbach dans le Kandertal. Ici, où les montagnes s'ouvrent et les vallées scintillent, nous louons pour la première fois des appartements ultra-modernes au standard d...
Détail des loyers
- Loyer net
- CHF 2'030
- Coûts supplémentaires
- CHF 230
- Total des loyers
- CHF 2'030
Détails du bien
- Disponible à partir de
- Sur accord
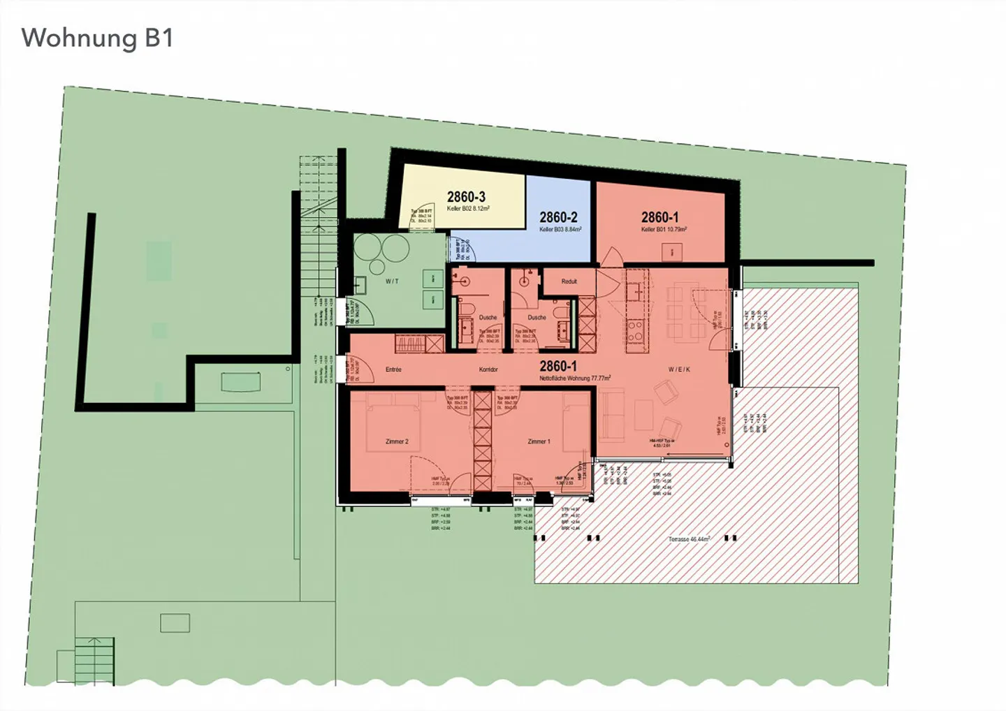
- Pièces
- 3.5
- Année de construction
- 2026
- Surface habitable
- 78 m²
- Étage
- 9ème
- Étages du bâtiment
- 3



