Appartement à louer - Lommiserstrasse 16, 9545 Wängi
Pourquoi vous aimerez ce bien
Design ouvert
Quartier résidentiel calme
Accès direct à la nature
Organiser une visite
Réserver une visite avec Joela aujourd'hui !
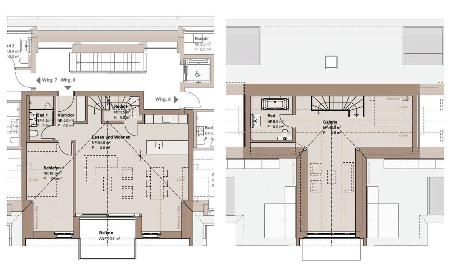
Appartement neuf de rêve avec galerie
Points forts de l'appartement et des environs :
- Appartement moderne avec galerie et balcon, qui impressionne par son aménagement ouvert
- Wängi offre un quartier résidentiel calme avec de bonnes connexions et un charme rural
- De nombreux sentiers de promenade et de vélo dans les environs invitent à se détendre dans la nature juste devant votre porte
Les points les plus importants en un coup d'œil :
Animaux de compagnie : Seulement des chats d'appartement
Ascenseur : Oui
Instruments : Non
Parking : Ou...
Détail des loyers
- Loyer net
- CHF 2'235
- Coûts supplémentaires
- CHF 265
- Total des loyers
- CHF 2'235
Détails du bien
- Disponible à partir de
- Sur accord
- Pièces
- 3.5
- Surface habitable
- 119 m²
- Étage
- 2ème



