Appartement meublé à louer - Le Village 157, 1532 Fétigny
Pourquoi vous aimerez ce bien
Entièrement meublé et équipé
Cuisine ouverte avec appareils
Option de ménage hebdomadaire
Organiser une visite
Réserver une visite aujourd'hui !
Appartement meublé 3.5 pièces
Bel appartement 2 chambres à 10min de Payerne, entièrement équipé
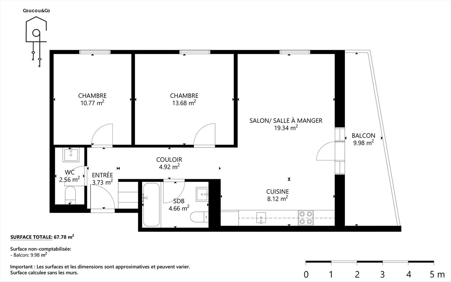
À louer à Fétigny, dans un petit immeuble récent, un appartement moderne et contemporain d''environ 60m2, entièrement équipé et meublé.
L''appartement se compose comme suit :
* Deux chambres comprenant un lit double de 160x200cm.
* Une belle cuisine ouverte sur le salon. Elle comprend notamment une machine à café, un four ainsi qu'un lave-vaisselle.
* Une pièce à vivre bien aménagée avec table à manger et espace salon.
* Une salle de ba...
Détails du bien
- Disponible à partir de
- Sur accord
- Pièces
- 3.5
- Salles de bain
- 1



