Appartement à louer - Staatsstrasse 147, 8888 Heiligkreuz (Mels)
Pourquoi vous aimerez ce bien
Balcon spacieux avec vue
Finitions de haute qualité
Accès pratique aux transports
Organiser une visite
Réserver une visite avec Amanda aujourd'hui !
Nouvelles Appartements - Date d'emménagement prévue Printemps 2026
Dans le village de Heiligkreuz, au sein de la commune politique de Mels, un immeuble d'habitation avec huit appartements est en construction. Heiligkreuz, situé au pied du Gonzen, est considéré comme le salon ensoleillé du Sarganserland. Malgré un caractère de peuplement partiellement urbain, la région de Sargans/Mels a réussi à conserver le charme rural à Heiligkreuz. Ainsi, à Heiligkreuz, on trouve principalement des maisons ind...
Détail des loyers
- Loyer net
- CHF 2’050
- Coûts supplémentaires
- CHF 220
- Total des loyers
- CHF 2’050
Détails du bien
- Disponible à partir de
- Sur accord
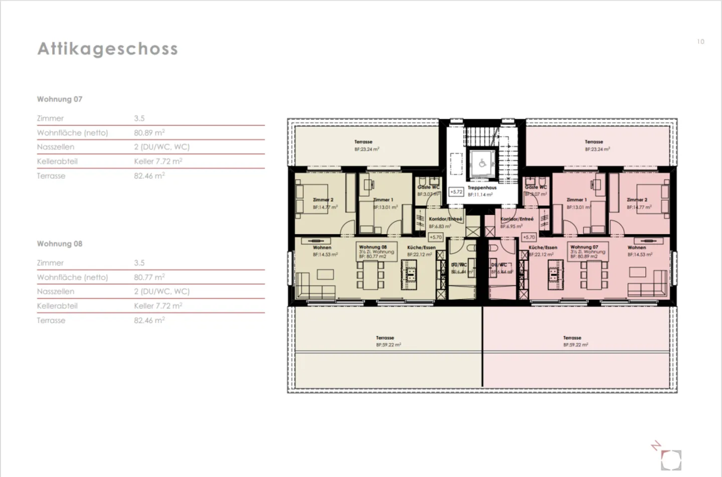
- Pièces
- 3.5
- Salles de bain
- 1
- Année de construction
- 2025
- Surface habitable
- 80 m²
- Étage
- 2ème
- Étages du bâtiment
- 3




