Appartement en terrasse à louer - Quellenstrasse 14, 8580 Amriswil
Pourquoi vous aimerez ce bien
Espace de vie ouvert spacieux
Accès direct à la terrasse
Grand cellier pour loisirs
Organiser une visite
Réserver une visite avec Haldimann aujourd'hui !
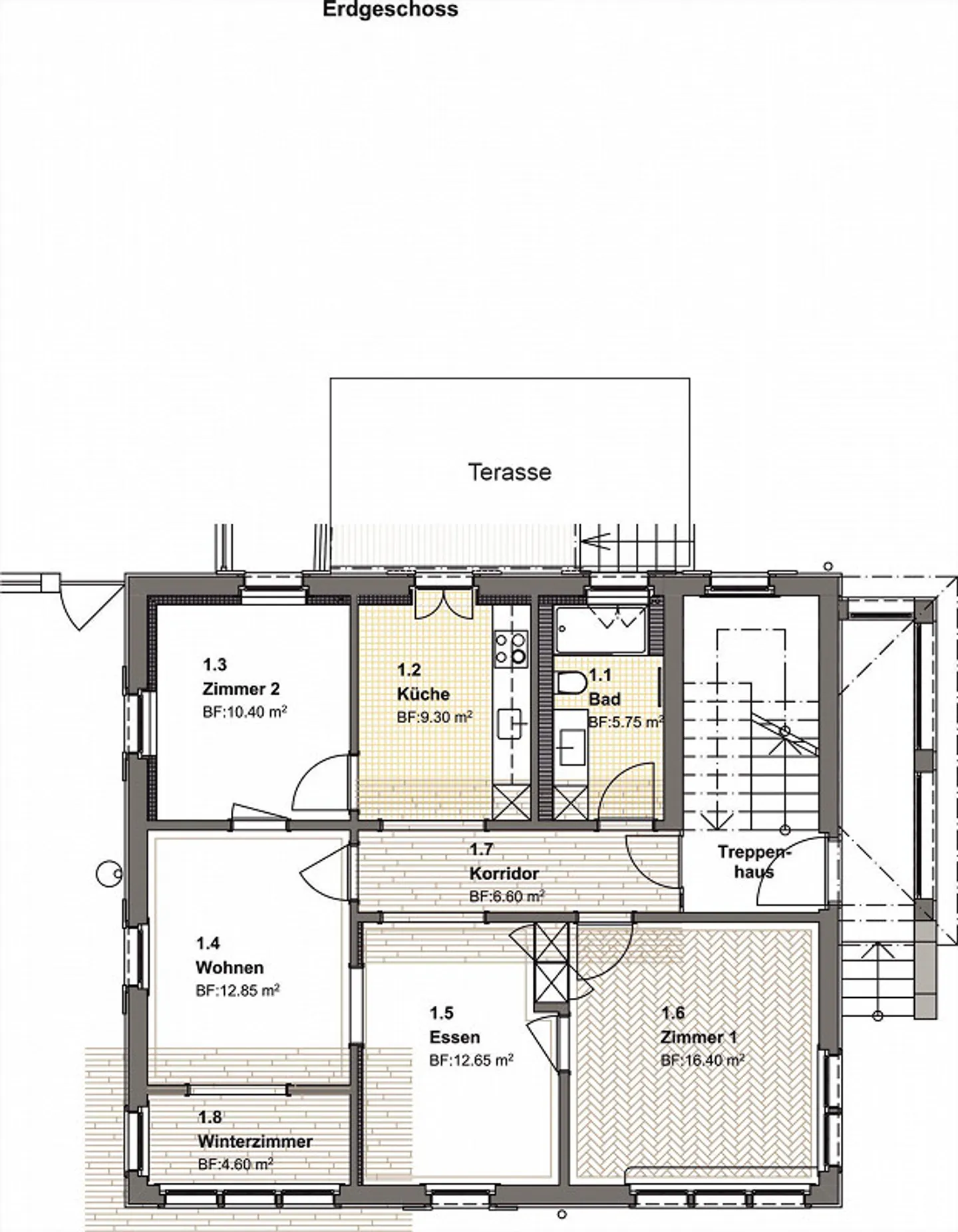
Appartement rénové de 3,5 pièces avec charme
L'appartement a été rénové avec beaucoup d'amour et d'attention aux détails. Il y a un an, toutes les fenêtres en bois, la cuisine, la salle de bain, les parquets, la terrasse, toutes les canalisations d'eau et d'égout, ainsi que le chauffage ont été renouvelés.
L'espace entre la cuisine, la salle à manger et le salon a été ouvert, créant une atmosphère de vie généreuse et lumineuse. (Auparavant, il s'agissait d'un appartement de 4 pièces.) De plus, une porte mène directement de la cuisine à la t...
Détail des loyers
- Loyer net
- CHF 2’040
- Coûts supplémentaires
- CHF 190
- Total des loyers
- CHF 2’040
Détails du bien
- Disponible à partir de
- Sur accord
- Pièces
- 3.5
- Année de rénovation
- 2024
- Étage
- 11ème
- Étages du bâtiment
- 3



