1 / 10

Appartement à louer - Grosshaslistrasse 14, 6010 Kriens

2.5 pièces • 2ème étage
CHF 1’490.-
-

Pourquoi vous aimerez ce bien

Balcon ensoleillé avec vue

Agencement pratique et confortable

Proche des commerces et transports

Organiser une visite

Réserver une visite avec Gewerbe-Treuhand aujourd'hui !

Gewerbe-Treuhand AG
Gewerbe-Treuhand AG
Cette description a été traduite automatiquement depuis Allemand.

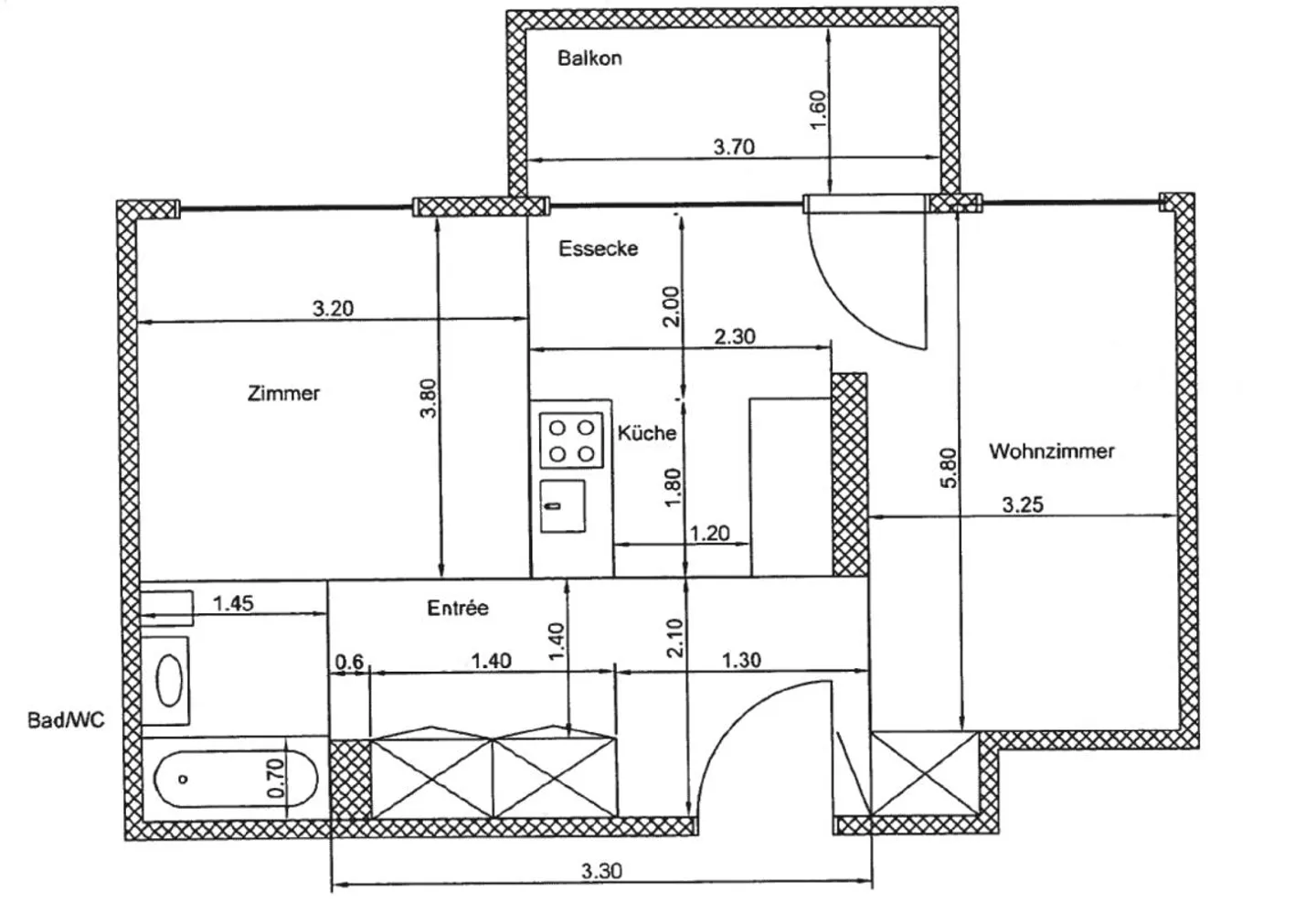
Êtes-vous à la recherche d'un bien résidentiel lumineux et calme dans un quartier proche du centre? Alors cet appartement fraîchement rénové de 2,5 pièces est parfait pour vous.

Le plan d'étage pratique offre une répartition optimale des pièces et les locaux nouvellement rénovés invitent à se sentir à l'aise. Grâce à l'emplacement central, les arrêts de bus et les commerces sont rapidement accessibles.

Points forts de cet appartement :

* Lumineux, calme, pratique

* Placards intégrés dans l'entrée

* B...

Détails du bien

Disponible à partir de
Sur accord
Pièces
2.5
Étage
2ème

Agence

Gewerbe-Treuhand AG
Gewerbe-Treuhand AG
Adresse:Eichwaldstrasse 13, 6002, Luzern
Ref: 7716438
En ligne depuis
16/10/2025
il y a 2 jours

Localisation

Grosshaslistrasse 14, 6010 Kriens