Appartement à louer - Bodenhofstrasse 13, 6005 Luzern
Pourquoi vous aimerez ce bien
Design moderne et lumineux
Terrasse jardin avec vue
Commodités en emplacement central
Organiser une visite
Réserver une visite avec Herr aujourd'hui !
Espace de jardin avec vue sur la montagne - Votre nouvel appartement en ville !
Appartement :
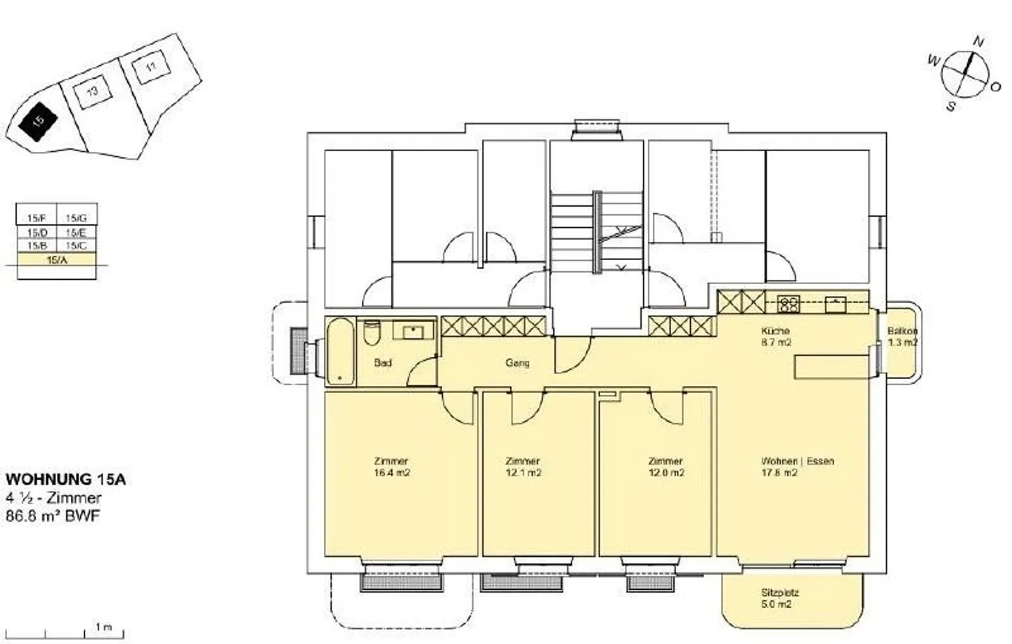
Le trendy appartement 4.5 dans le quartier Schönbühl se distingue par sa luminosité, son architecture moderne et surtout par l'espace de jardin avec vue sur le paysage montagneux.
- emplacement central
- 87 m² de surface habitable
- cuisine ouverte moderne avec lave-vaisselle et petit balcon
- salle de bain avec baignoire et fenêtre
- parquets dans tout l'appartement
- salles d'eau avec carrelage en céramique
- espace de jardin avec vue sur la verdure et le paysage montagneux
- chauffage gé...
Détail des loyers
- Loyer net
- CHF 2'560
- Coûts supplémentaires
- CHF 280
- Total des loyers
- CHF 2'560
Détails du bien
- Disponible à partir de
- Sur accord
- Pièces
- 4.5
- Surface habitable
- 87 m²
- Étage
- Rez



