Appartement à louer - 1260 Nyon
Organiser une visite
Réserver une visite avec SERVICE aujourd'hui !
Appartement 4.5 pièces
Splendide appartement neuf de 4,5 pièces au 3ème étage en duplex au bord du lac
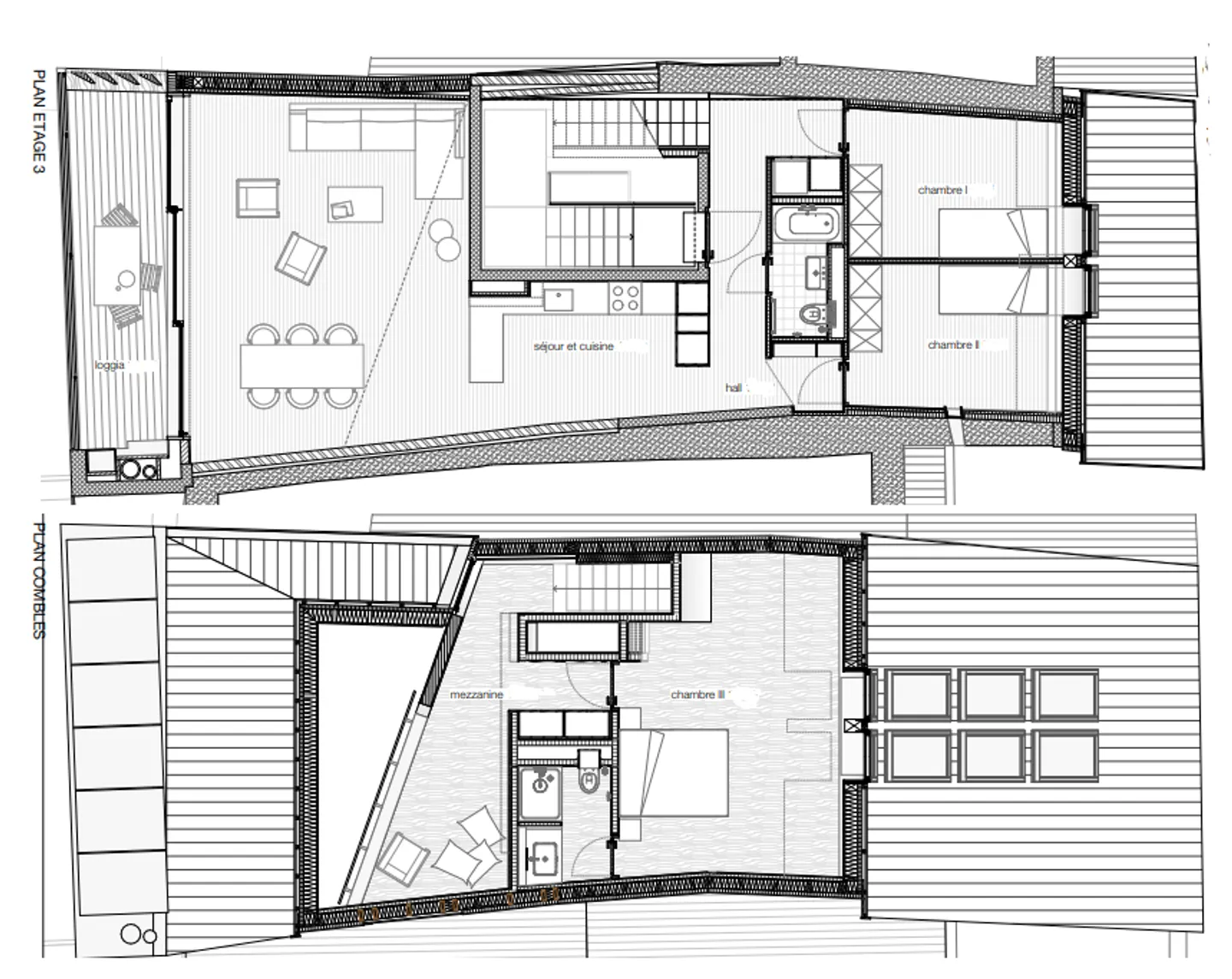
Exceptionnel appartement de 4.5 pièces au 3ème étage en duplex au bord du lac à Nyon comprenant :
- Un hall d'entrée avec armoires murales
- Une cuisine semi-ouverte sur le séjour
- Deux chambres avec armoires murales
- Une salle de bains
- Un WC séparé
- Un grand balcon
A l'étage:
- Une chambre parentale avec salle de douche à l'italienne/WC
- Une mezzanine
- Un espace de rangement
Loyer : CHF 3'900.00 + CHF 200.00 d'acompte...
Détails du bien
- Disponible à partir de
- Sur accord
- Pièces
- 4.5
- Salles de bain
- 2



