Appartement à louer - Parkstrasse 12, 6410 Goldau
Pourquoi vous aimerez ce bien
Intérieurs fraîchement rénovés
Spacieuse terrasse sur le toit
Emplacement central idéal
Organiser une visite
Réserver une visite avec Steiner aujourd'hui !
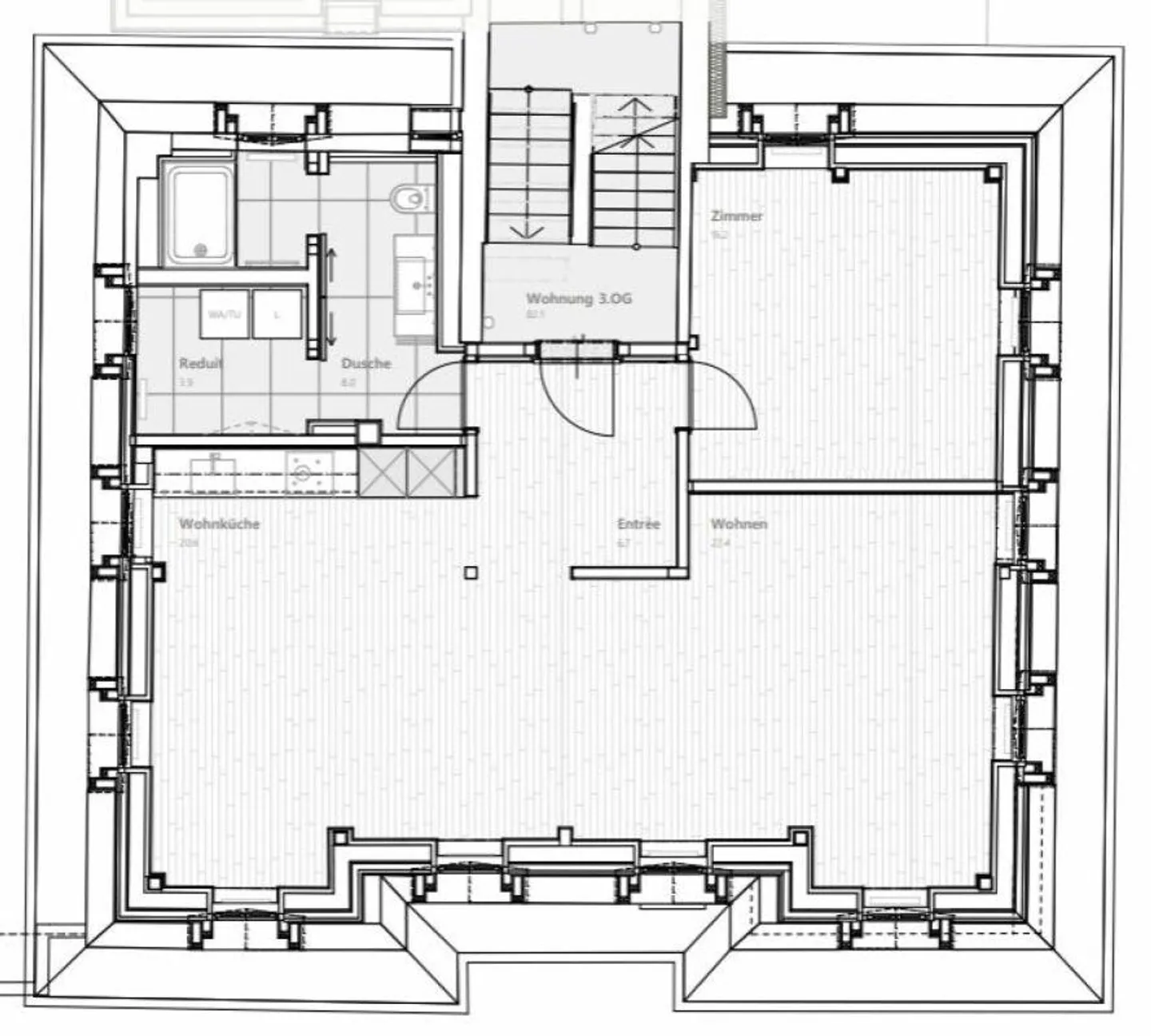
Appartement 2½ pièces au cœur de Goldau
Ici, vous pouvez vivre
L'appartement situé au 12 Parkstrasse se trouve au centre du village de Goldau et à seulement deux minutes à pied du nœud ferroviaire SBB Arth-Goldau. De là, il existe des connexions directes vers Bâle, Lucerne, Zurich, le Tessin et avec la Südostbahn vers l'Est de la Suisse. La situation est également idéale pour le trafic individuel : l'accès à l'autoroute A4 se fait en seulement quatre minutes en voiture.
À proximité immédiate, vous trouverez tout ce dont vous avez besoin...
Détail des loyers
- Loyer net
- CHF 2’370
- Coûts supplémentaires
- CHF 240
- Total des loyers
- CHF 2’370
Détails du bien
- Disponible à partir de
- Sur accord
- Pièces
- 2.5
- Surface habitable
- 82 m²
- Étage
- 3ème



