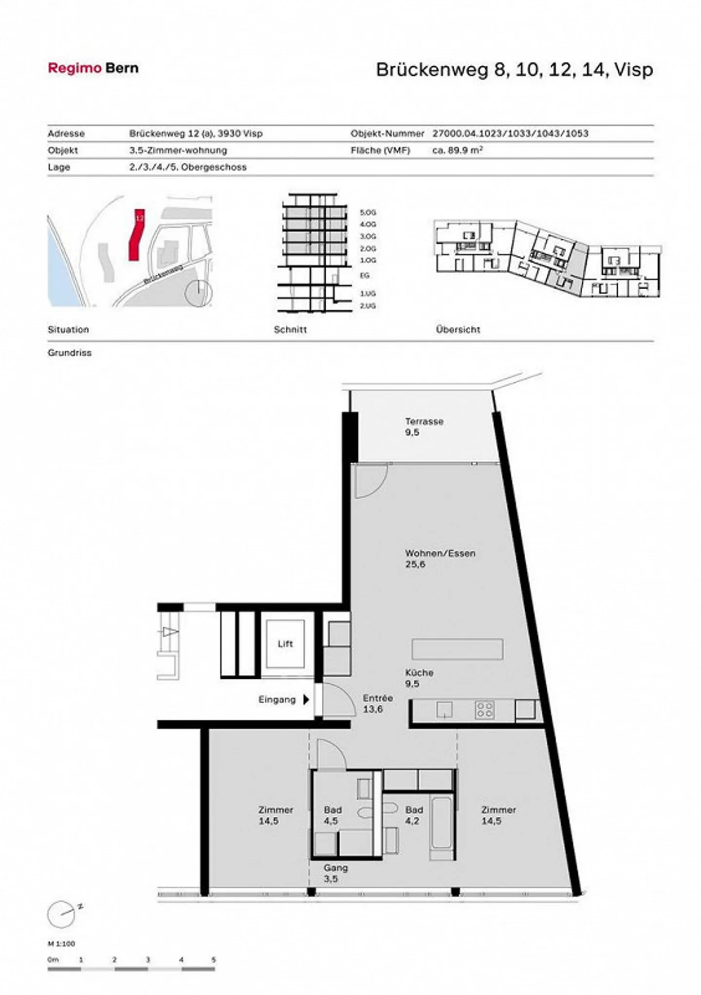
Appartement à louer - Brückenweg 12, 3930 Visp
Pourquoi vous aimerez ce bien
Design moderne spacieux
Grand balcon pour se détendre
Cuisine ouverte avec lave-vaisselle
Organiser une visite
Réserver une visite avec Artan aujourd'hui !
Appartement au centre de Visp
Profitez des dimensions spacieuses de cet appartement moderne et lumineux avec un grand balcon après une journée de travail bien remplie. En tant que citadin, vous appréciez la vie urbaine qui pulse dans les environs immédiats et plus larges.
Pour votre qualité de vie :
- cuisine ouverte avec lave-vaisselle et vitrocéramique
- parquets et carrelages
- propre tour de lavage
- salle d'eau avec baignoire/WC
- salle d'eau avec douche/WC
- placard à l'entrée
- balcon
- ascenseur
- cave
De plus, sur demande : pl...
Détail des loyers
- Loyer net
- CHF 2’010
- Coûts supplémentaires
- CHF 200
- Total des loyers
- CHF 2’010
Détails du bien
- Disponible à partir de
- Sur accord
- Pièces
- 3.5
- Année de construction
- 2013
- Surface habitable
- 89 m²
- Étage
- 3ème


