Appartement à louer - Elestastrasse 11a, 7310 Bad Ragaz
Pourquoi vous aimerez ce bien
Terrasses spacieuses avec vue
Espaces de vie lumineux
Cuisine moderne avec rangement
Organiser une visite
Réserver une visite avec Eveline aujourd'hui !
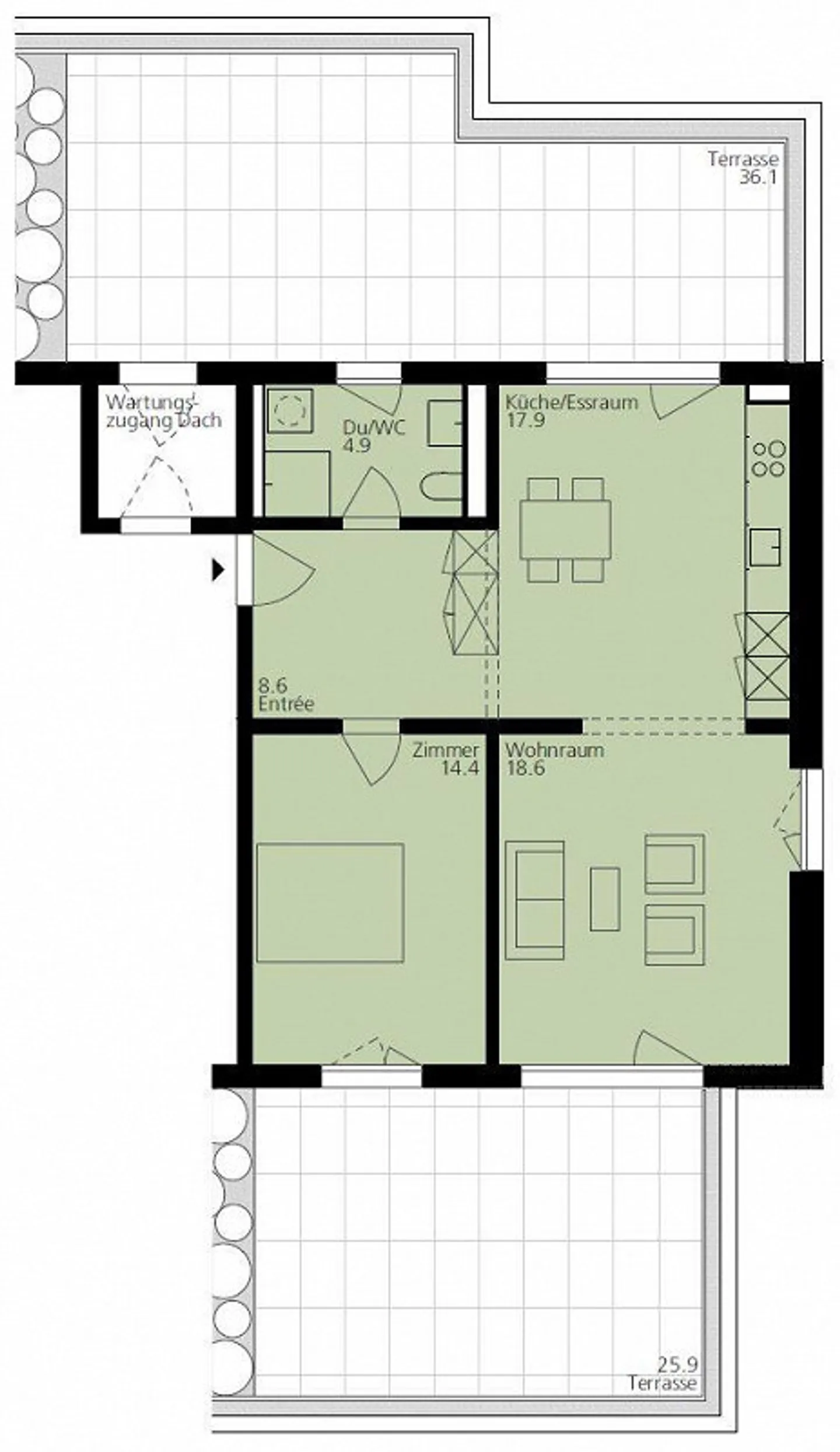
Appartement Attique Moderne dans un Bon Emplacement
Le développement Stazzo à Bad Ragaz est situé sur l'Elestastrasse, juste à côté de la gare de Bad Ragaz, d'où vous pouvez prendre des trains et des bus vers partout dans la région, en Suisse et dans le monde entier.
Le plan d'étage réfléchi et les pièces baignées de lumière font de cet appartement attique de 2 ½ pièces quelque chose de très spécial. De plus, l'appartement dispose de deux terrasses spacieuses avec une vue magnifique.
Équipement :
CUISINE
- Aménagement de cuisine avec beaucoup d'espac...
Détail des loyers
- Loyer net
- CHF 1’640
- Coûts supplémentaires
- CHF 180
- Total des loyers
- CHF 1’640
Détails du bien
- Disponible à partir de
- Sur accord
- Pièces
- 2.5
- Année de construction
- 2018
- Surface habitable
- 64 m²
- Étage
- 4ème




