Appartement à louer - Wiesentalstrasse 11, 9404 Rorschacherberg
Pourquoi vous aimerez ce bien
Emplacement calme près des commodités
Cuisine moderne avec appareils
Balcon pour se détendre dehors
Organiser une visite
Réserver une visite avec Rietschin aujourd'hui !
Appartement lumineux dans un emplacement calme avec vue sur la verdure
La propriété est située dans un quartier calme. Les commerces, ainsi que divers restaurants, sont à proximité. Une succursale Denner se trouve dans le même bâtiment. La ville de Rorschacherberg est bien desservie (transports publics) et très populaire en raison de sa proximité avec le lac.
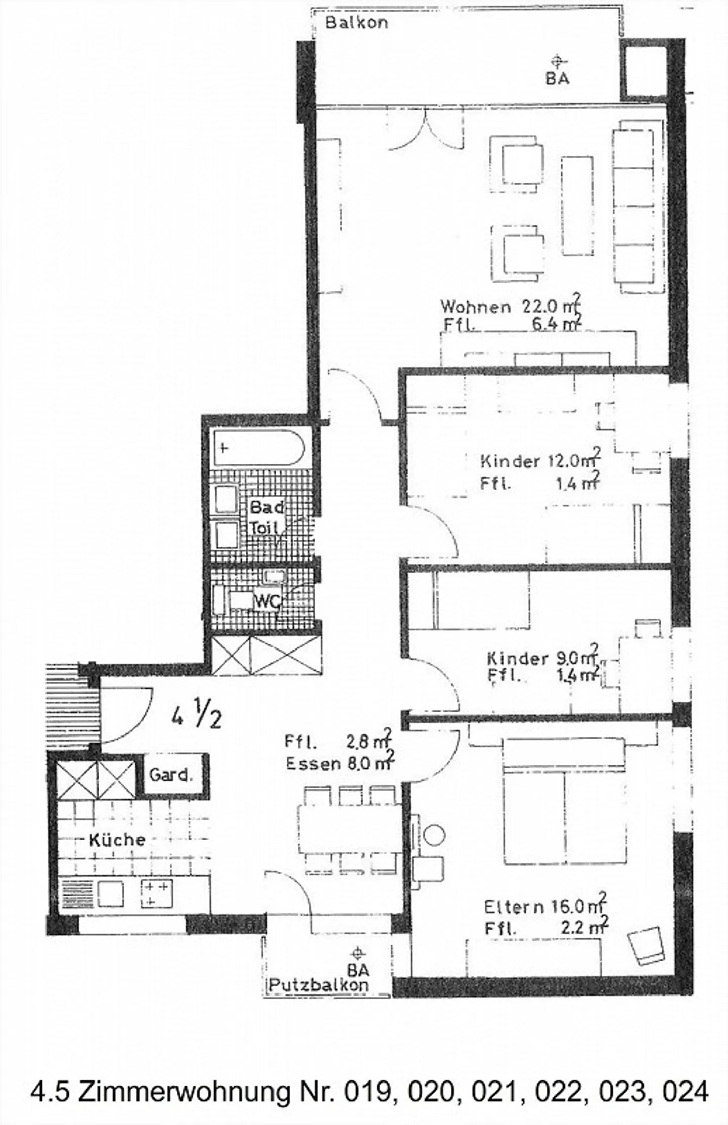
Dans ce bel environnement, un appartement confortable vous attend. Le salon/couloir est équipé de parquet, un sol en vinyle a été posé dans les chambres à coucher/enfants, et des carreaux/lino dans les salles d...
Détail des loyers
- Loyer net
- CHF 1’495
- Coûts supplémentaires
- CHF 240
- Total des loyers
- CHF 1’495
Détails du bien
- Disponible à partir de
- Sur accord
- Pièces
- 4.5
- Année de construction
- 1974
- Surface habitable
- 90 m²
- Étage
- 1er



