1 / 7

Appartement à louer - Rue Fritz-Marchand 11, 2615 Sonvilier

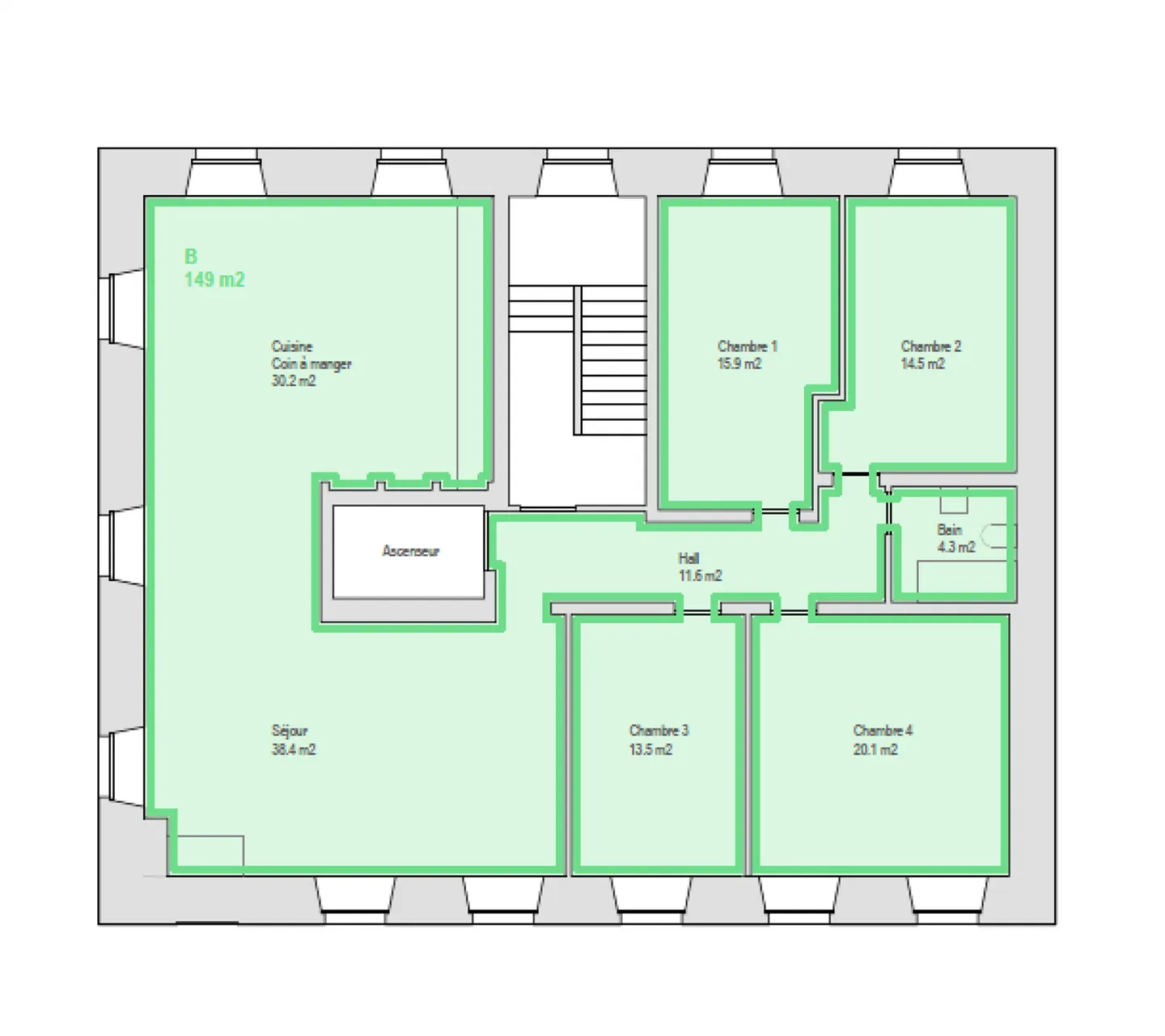
5.5 pièces • 150 m² • 1er étage
CHF 1’700.-
CHF 136 m² / year

Pourquoi vous aimerez ce bien

Accessible à tous

Cuisine ouverte avec cheminée

Place de parc réservée

Organiser une visite

Réserver une visite avec Sammie aujourd'hui !

Sammie Keller
Buri Gestion Sàrl

Magnifique appartement de 5.5 pces dans un immeuble très bien entretenu récemment rénové d'environ 150m2 situé à proximité de l'école primaire. L'appartement est accessible aux personnes à mobilité réduite et se décline comme suit :

* Hall d'entrée

* Grande cuisine ouverte sur le séjour avec cheminée

* 4 belles chambres

* Salle de bain

Accès direct à l'appartement avec ascenseur

Jardin commun

place de parc réservée aux locataires 

Détails du bien

Disponible à partir de
Sur accord
Pièces
5.5
Surface habitable
150
Étage
1er

Agence

Buri Gestion Sàrl
Adresse:B.-Savoye 67A, 2610, St-Imier
Ref: 5b0ddfec-88a9-11f0-9d93-069ae14c7a06
En ligne depuis
03/09/2025
il y a 2 mois

Localisation

Rue Fritz-Marchand 11, 2615 Sonvilier

Sources