Appartement à louer - Avenue Du Léman 11, 1005 Lausanne
Pourquoi vous aimerez ce bien
Superbes vues sur le toit
Espace de vie lumineux
Cuisine entièrement équipée
Organiser une visite
Réserver une visite aujourd'hui !
Offre limitée ! vue sur le toit et emplacement central : appartement 1 chambre à lausanne
Profitez de séjours à prix réduit en novembre, décembre et janvier - seulement CHF 2'500 - Ne manquez pas ce tarif limité dans le temps !
Loyer mensuel régulier : CHF 2'700
Séjour de 3 mois ou plus : CHF 2'600
Séjour de 6 mois ou plus : CHF 2'500
Appartement moderne 1 chambre dans le centre de Lausanne
Situé au cour de Lausanne, à seulement 5 minutes à pied de la Place St-François et 10 minutes du centre-ville, cet appartement lumineux et moderne d'une chambre allie confort, style et praticité. ...
Détails du bien
- Disponible à partir de
- 01.01.1970
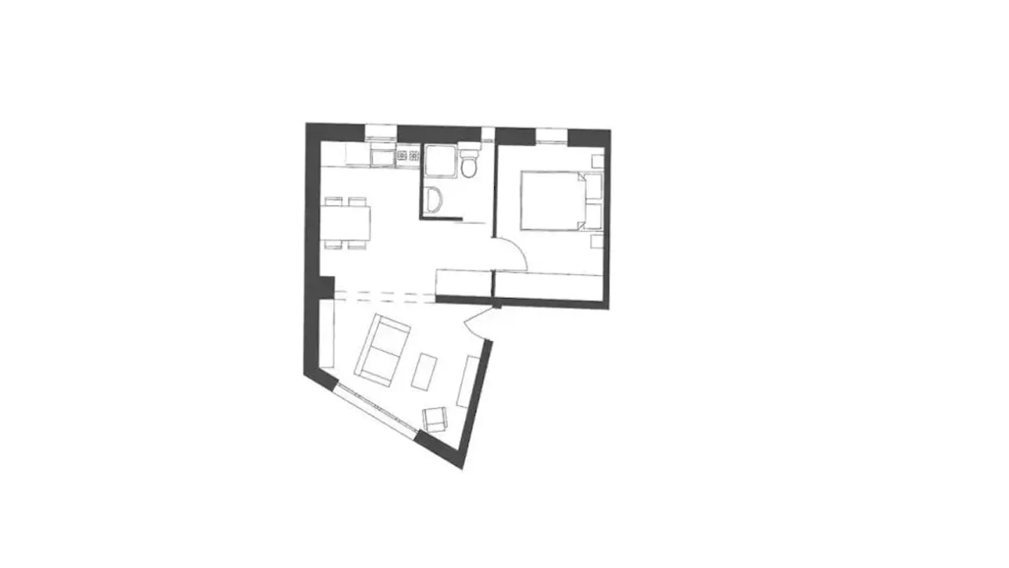
- Pièces
- 2.5
- Surface habitable
- 36 m²
- Surface utilisable
- 36 m²
- Étage
- 1er



