Appartement à louer - Rue Du Borgeaud 10a, 1196 Gland
Pourquoi vous aimerez ce bien
Quartier calme et accessible
Cuisine ouverte sur salle à manger
Balcon pour se détendre
Organiser une visite
Réserver une visite aujourd'hui !
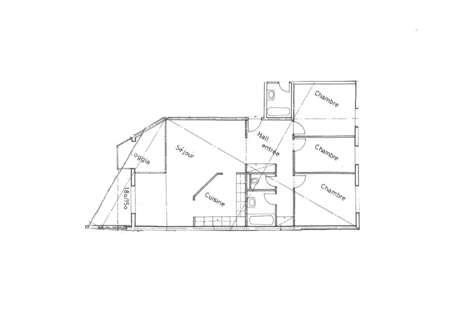
Appartement de 4 pièces
Idéal pour une famille, pour des personnes travaillant entre Lausanne et Genève, ce bel appartement de 4 pièces situé au 2ème étage, dans un quartier calme, proche de toutes commodités, commerces, banques, gare CFF, accès autoroute est composé de la manière suivante
- 1 hall et 1 couloir avec armoires murales,
- 1 cuisine entièrement agencée et ouverte sur le coin à manger,
- 1 grand séjour,
- 3 chambres,
- 1 salle de bains offrant la possibilité d installer sa propre machine à laver,
- 1 salle-d...
Détail des loyers
- Loyer net
- CHF 2’650
- Coûts supplémentaires
- CHF 430
- Total des loyers
- CHF 2’650
Détails du bien
- Disponible à partir de
- 01.01.1970
- Pièces
- 4
- Année de construction
- 1986
- Année de rénovation
- 2022
- Surface habitable
- 106 m²
- Surface utilisable
- 106 m²
- Étage
- 2ème



