Appartement à louer - Rue de l'Evole 108, 2000 Neuchâtel
Organiser une visite
Réserver une visite avec Gérance aujourd'hui !
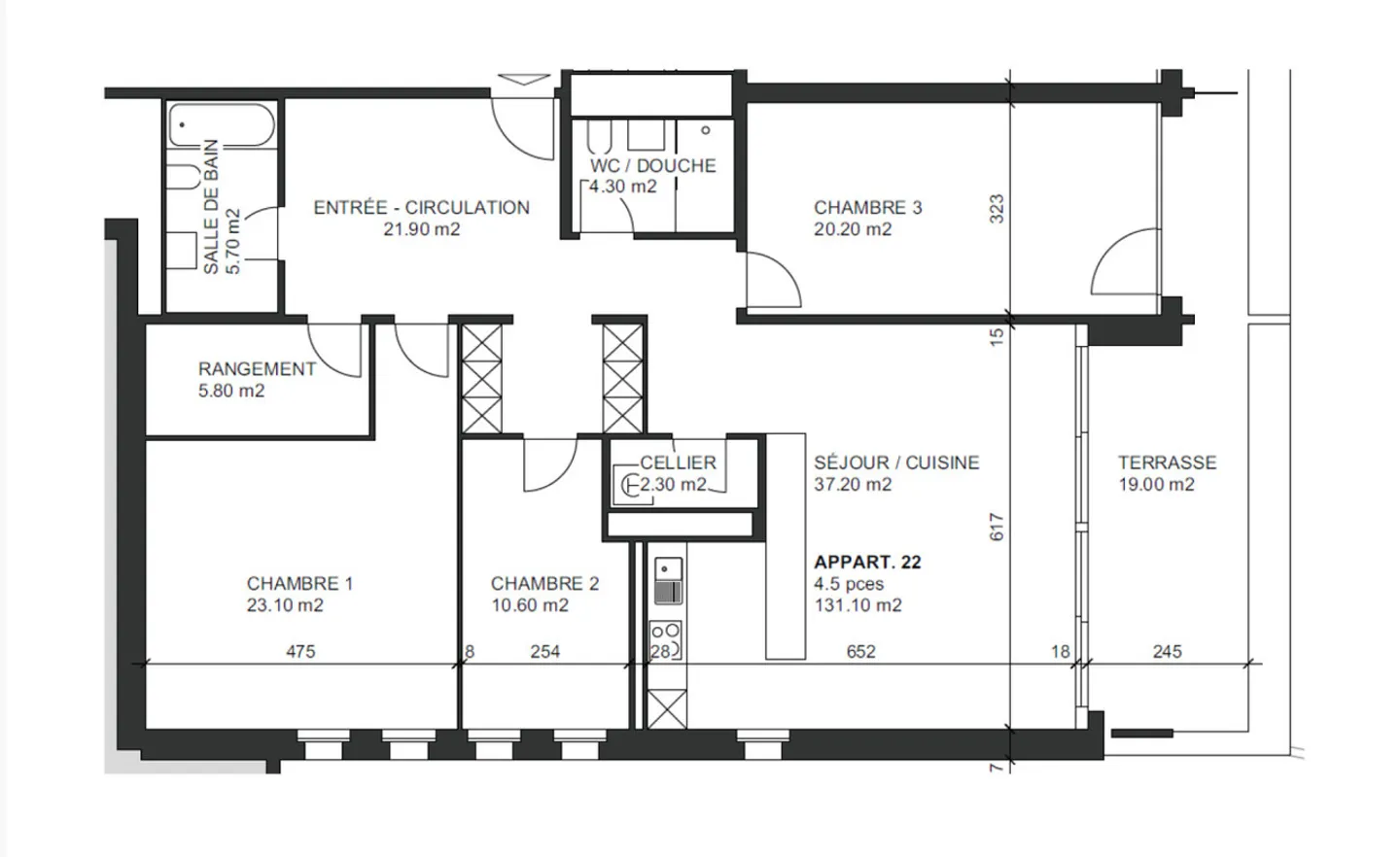
Appartement de 4.5 pièces entièrement rénovéDans un immeuble entièrement rénové, avec ascenseur, nous vous proposons cet appartement entièrement neuf (première location).Ce logement comprend : Séjour, trois chambres, hall, cuisine agencée, salle de bain/WC, salle de douche/WC, cellier, réduit, terrasse, cave.Parking collectif au chemin de Trois-Portes 33-33a (accès direct entre les 2 immeubles par un escalier extérieur). CHF 140.00/mois. Ou garage individuel CHF 160.00 /moisDate d'entrée à conve...
Détail des loyers
- Loyer net
- CHF 3'020
- Coûts supplémentaires
- CHF 440
- Total des loyers
- CHF 3'020
Détails du bien
- Disponible à partir de
- Sur accord
- Pièces
- 4.5
- Salles de bain
- 2
- Surface habitable
- 131 m²
- Étage
- 2ème



