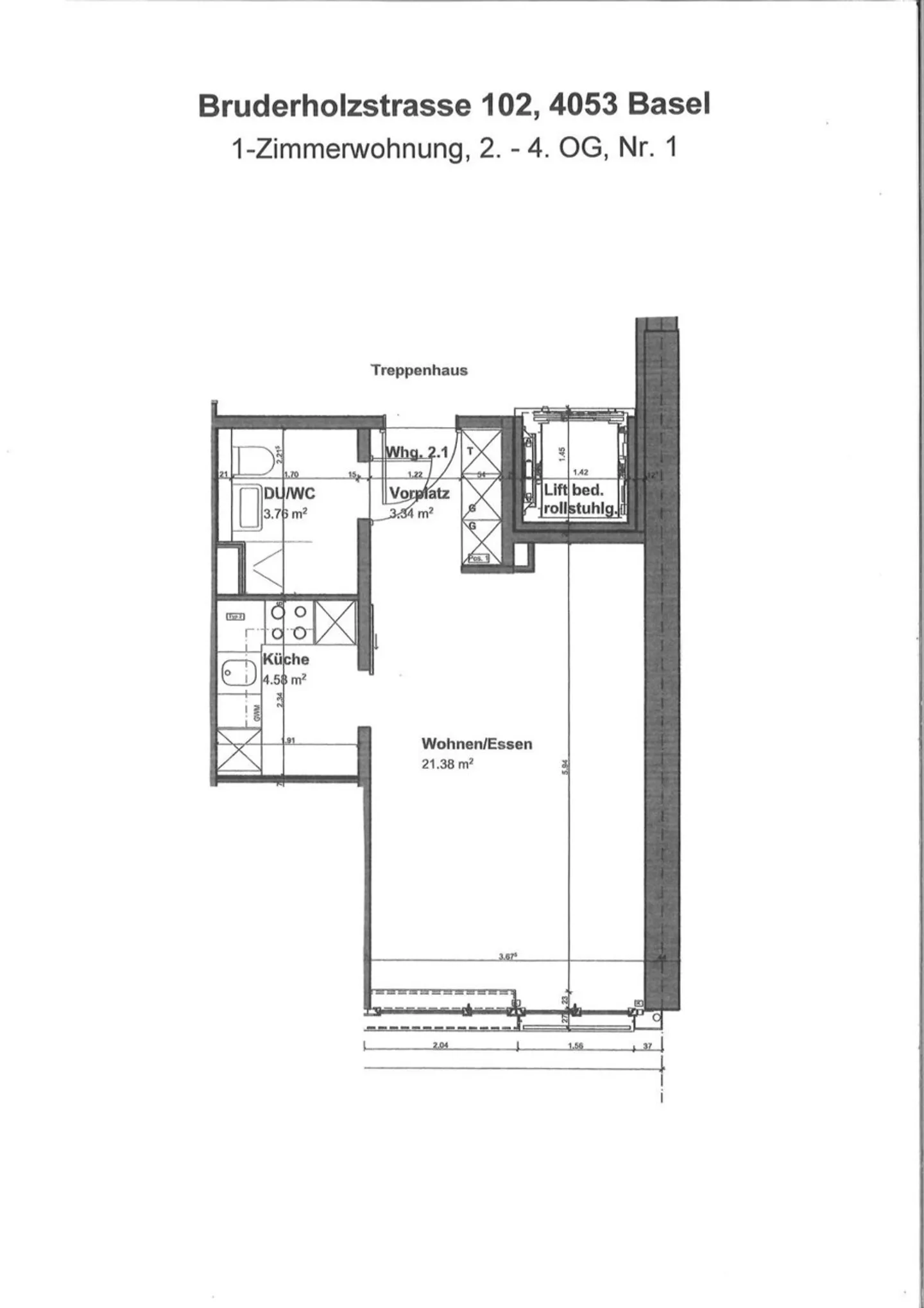
Appartement à louer - Bruderholzstrasse 102, 4053 Basel
Pourquoi vous aimerez ce bien
Cuisine moderne incluse
Proche des transports
Quartier animé à proximité
Organiser une visite
Réserver une visite avec Elias aujourd'hui !
Vie urbaine pure !
À seulement un jet de pierre de la gare principale de Bâle (environ 10 minutes à pied), se trouve votre nouveau chez-vous. Nous louons cet appartement 1 pièce petit mais de qualité à Bruderholzstrasse à partir du 1er juillet 2026, au 4ème étage.
L'appartement est équipé comme suit :
- cuisine moderne
- douche/WC
- ascenseur disponible
- cave disponible
ATTENTION : Les images sont celles d'un appartement comparable. Elles servent principalement à montrer le niveau de finition actuel.
Dans les environ...
Détail des loyers
- Loyer net
- CHF 1'110
- Coûts supplémentaires
- CHF 150
- Total des loyers
- CHF 1'110
Détails du bien
- Disponible à partir de
- 01.07.2026
- Pièces
- 1
- Surface habitable
- 33 m²
- Étage
- 4ème



