Appartement à louer - Vordergasse 10, 8200 Schaffhausen
Pourquoi vous aimerez ce bien
Charme historique
Espace de vie lumineux
Avantages d'une localisation centrale
Organiser une visite
Réserver une visite avec Janine aujourd'hui !
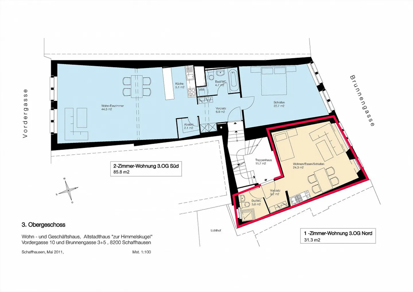
Appartement 1.0 pièce à schaffhouse
Dans cette charmante propriété de la vieille ville, nous louons un appartement 1 pièce confortable et bien entretenu au 3ème étage. Cet appartement se distingue par son caractère particulier de vieille ville et convient idéalement aux célibataires ou aux résidents temporaires qui apprécient un emplacement de vie central et calme.
Le salon et la chambre sont équipés d'un sol en stratifié clair, qui crée une atmosphère amicale et accueillante. Une petite kitchenette ouverte avec deux plaques de cui...
Détail des loyers
- Loyer net
- CHF 960
- Coûts supplémentaires
- CHF 110
- Total des loyers
- CHF 960
Détails du bien
- Disponible à partir de
- Sur accord
- Pièces
- 1
- Surface habitable
- 29 m²
- Étage
- 3ème



