Appartement à louer - Rives De La Broye 10, 1530 Payerne
Pourquoi vous aimerez ce bien
Proche des transports publics
Cuisine moderne équipée
Buanderie commune disponible
Organiser une visite
Réserver une visite avec aujourd'hui !
Il fait bon vivre à Payerne : visionnez notre vidéo : [https://youtu.be/TvHSUhhMTIg](https://youtu.be/TvHSUhhMTIg)
Dynamique avec son aérodrome et son karting, la terre d'accueil de Solar Impulse vous propose une expérience à mi-chemin entre ville et village. Commerces, cinéma et gare vous attendent sur place. Des écoles allant de la primaire à la secondaire, un Gymnase intercantonal ainsi qu'une école professionnelle rendent la commune vivante et familiale.
Le nouvel arrêt du bus de la ligne num...
Détail des loyers
- Loyer net
- CHF 920
- Coûts supplémentaires
- CHF 105
- Total des loyers
- CHF 920
Détails du bien
- Disponible à partir de
- Sur accord
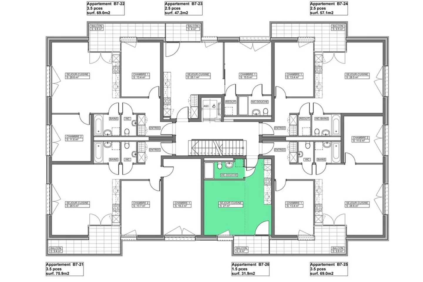
- Pièces
- 1
- Année de construction
- 2017
- Surface habitable
- 32 m²
- Étage
- 2ème


