Duplex à louer - Grand-Rue 10, 1204 Genève
Pourquoi vous aimerez ce bien
Emplacement au coeur de la ville
Cuisine moderne entièrement équipée
Proche des transports publics
Organiser une visite
Réserver une visite avec Muriel aujourd'hui !
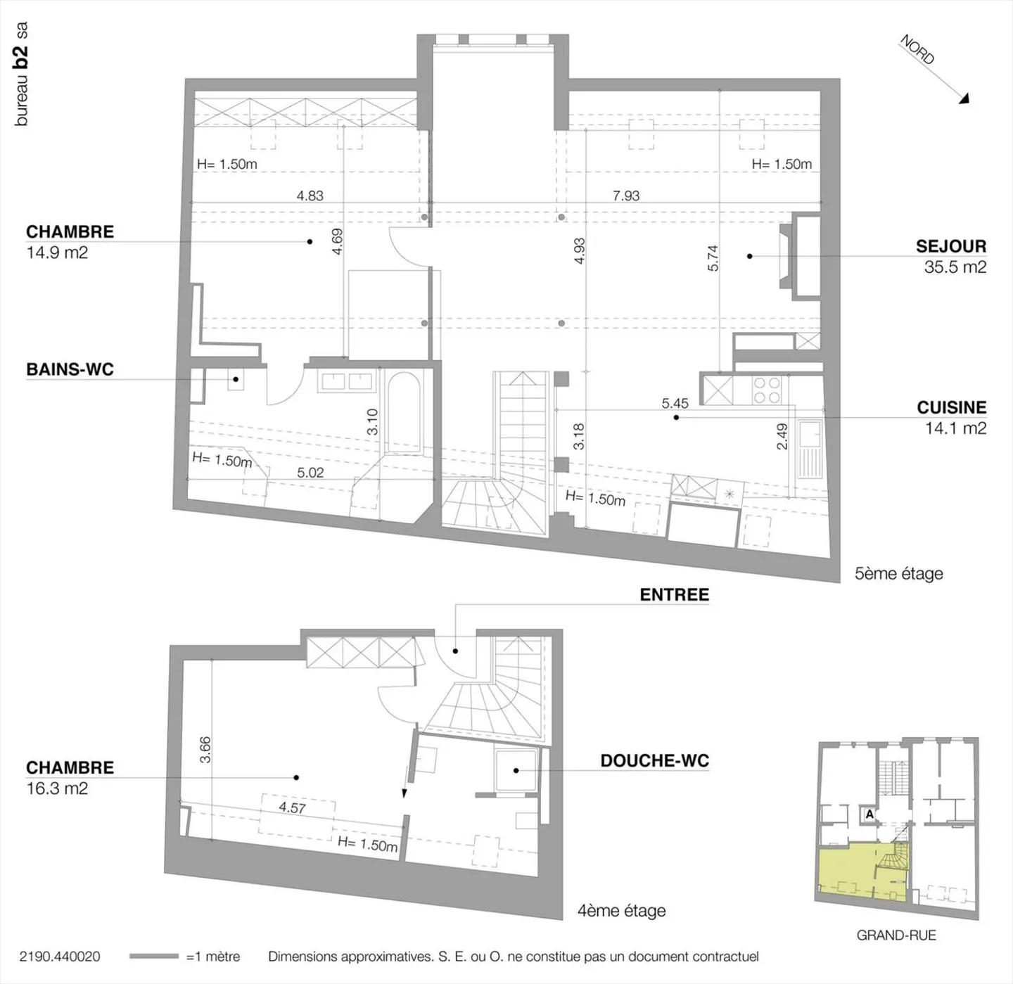
Duplex 4 pièces
Duplex en vieille-ville
Situé au coeur de la Vieille-Ville, proche des transports publics et de toutes les commodités.
Ce bel appartement en duplex se distribue comme suit :
4ème étage : Entrée, une chambre, salle de douche avec wc et raccordement pour le lave-linge/sèche-linge.
5ème étage : Séjour, cuisine entièrement équipée (réfrigérateur, congélateur, plaques, four, hotte, lave-vaisselle), une seconde chambre avec salle de bains et wc attenants.
Aucune cave à disposition.
Charges mensuelles ...
Détails du bien
- Disponible à partir de
- Sur accord
- Pièces
- 4
- Salles de bain
- 2
- Surface habitable
- 105 m²



