Appartement à louer - Aarauerstrasse 10, 4656 Starrkirch-Wil
Pourquoi vous aimerez ce bien
Cuisine ouverte spacieuse
Accès au jardin privé
Idéal pour les amoureux de la nature
Organiser une visite
Réserver une visite aujourd'hui !
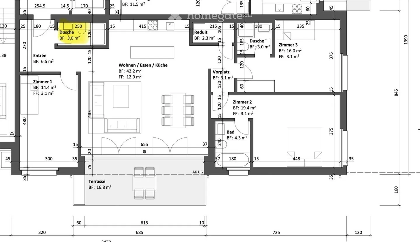
Appartement lumineux de 4,5 pièces à Starrkirch-Wil
Nous recherchons un nouveau locataire pour notre magnifique appartement lumineux de 4,5 pièces à Starrkirch-Wil à partir du 16 février 2026 (ou par arrangement).
L'appartement se distingue par une répartition idéale des pièces, beaucoup de lumière et un jardin privé. La cuisine et le salon sont spacieux et ouverts, et la façade de fenêtres donnant sur le jardin laisse entrer beaucoup de lumière. Deux chambres ont un accès direct à leur propre douche/WC ou salle de bain/WC, et un WC invité supplém...
Détails du bien
- Disponible à partir de
- Sur accord
- Pièces
- 4.5
- Surface habitable
- 112 m²



